Як зробити саморобний піролізний котел і що потрібно для зборки. Котел піролізний саморобний


Котел пиролизный сделать своими руками. Чертежи пиролизного котла.

Прежде всего хочу поставить всё на свои места: пиролизных котлов, как таковых, для населения не делает ни одна организация на территории СНГ. Все выставленные на продажу конструкции, называемые пиролизными, являются газогенераторными котлами. Разница в том, что в пиролизном котле топливо нагревается извне, а в газогенераторном очаг находится в самой загрузочной камере, и для его поддержания подаётся в неё воздух. Такие котлы проще в эксплуатации, требуют менее жаропрочных сталей и их вполне можно повторить самому в домашних условиях. Поэтому, иной раз, называя котел пиролизный, мы будем подразумевать газогенераторный.

Преимущества и недостатки пиролизных котлов по отношению к обычным твердотопливным.

Неоспоримым преимуществом пиролизного котла является его способность поддерживать заданную температуру дольше, чем обычные котлы, благодаря увеличенной загрузочной камере и более высокому КПД. Некоторые конструкции могут работать около суток на одной закладке топлива. Выход отработанных газов содержит меньшее количество канцерогенных веществ. Газогенераторные котлы, имеющие автоматическую подачу топлива, являются лучшей альтернативой при отсутствии газа. Их обслуживание не редко представляет собой только загрузку топлива в расходный бункер, который может быть практически любых размеров и  его объема может быть достаточно для отопления на весь сезон. Также пиролизные котлы могут утилизировать некоторые виды отходов, практически не загрязняя окружающую среду, при этом получая тепловую энергию. К таким отходам можно отнести резину, всевозможные пластмассы, полимеры и т.п.

К недостаткам пиролизных колов можно отнести их более высокую стоимость, требовательность к топливу и большие габариты, если это котел с периодической, а не автоматической загрузкой топлива.

Есть великое множество всевозможных мелких организаций и серьёзных фирм, занимающихся производством подобного рода котлов. Некоторые производят отличные котлы, это в основном импортные производители, реже - наши.  Также встречал и ужасные конструкции, это больше относится к местным фирмам, которые порой мало понимают, что должно у них получится, и соответственно их конструкции не выдерживают никакой критики. Я не ставлю перед собой цели опорочить кого - либо, но если вы видите, что производство налажено в сарае, то, пожалуй, не стоит покупать такой котел, но оценив свои силы и возможности, сделать его самому. Это позволит вам сэкономить солидную сумму, так как общие накрутки производителей и продавцов часто достигают 200-400 % от себестоимости котла.

Многие наши умельцы, особенно в последнее время, ставят перед собой задачу - самостоятельно изготовить пиролизный котёл. Но информационная недостаточность и связанный с этим риск потерять средства на непроверенной конструкции становятся преградой, и не многие решаются пойти дальше. Я с 2007 года сделал несколько своих конструкций, а также имел возможность переделывать некоторые котлы местных фирм для улучшения их характеристик.  Оборудование для этого применялось самое обычное: инвертор, болгарка, дрель, резак, хотя без последнего можно обойтись.

На сайте   www.myhouse.name предоставлена предварительная информация об некоторых моих конструкциях изготовленных за последнее время. Есть возможность заказать документацию для самостоятельного изготовления пиролизных котлов мощностью от 10 до 60 кВт. Посмотрите видео работы котла http://www.myhouse.name/video/video.avi

Основное топливо - это дрова или пеллеты, но можно добавлять в некоторых количествах такие материалы, как резина, пластмасса, полимеры, ДСП и ДВП.

Есть специализированные форумы по этим котлам www.myhouse.name/forum , а также www.horobey.forum2x2.ru/

Если вы всё - таки решились покупать готовый газогенераторный котел, то придерживайтесь в своем выборе следующих принципов.

Лучше всего брать импортный котел. Конечно, он дороже, но такой котел будет служить вам долгие годы.

Если решили покупать пиролизный котёл местного производства, смотрите лицензию на производство подобного рода котлов, это конечно, не гарантия того, что Вы действительно купите надёжную и долговечную конструкцию, но риск приобрести некачественную продукцию уменьшится.

Оцените внешний вид котла, качество сварочных швов, загляните под декоративную обшивку, если есть такая возможность. Уточните какой металл использовался для котла, его толщина и марка. Меньше 4 мм для внутренних стенок- это плохо. Если в котле используется керамика, уточните стоимость замены форсунки, иной раз её стоимость составляет до 30%  стоимости котла. Уточните для какой системы отопления  этот котёл может быть использован: открытой или закрытой.  Узнайте какую гарантию имеет котёл, и что входит в неё, это должно быть отражено в вашем договоре о гарантийном обслуживании. Лучший вариант- узнать адрес уже купившего такой котёл, не полениться съездить пообщаться с этим человеком и уж потом принимать решение.

Еще немаловажно то, что пиролизные котлы надо брать с небольшим запасом мощности по отношению к расчётной по вашему помещению. Это связано с тем, что не всегда вы сможете вложить в котёл идеальное ( сухое) топливо. А при влажности топлива более 50% мощность упадёт, а расход топлива увеличится почти в 2 раза по сравнению с 20% влажностью топлива.

Прежде чем покупать или строить самому газогенераторный котёл, вы должны знать, что для котла желательно изолированное помещение: это не газовый котел, а твердотопливный, и во время загрузки топлива могут сыпаться его фрагменты, которые будут разноситься по дому, если он будет стоять в кухне или, скажем, прихожей.

Для примера: дымовая труба котла на 40 кВт должна быть не менее 200 мм в диаметре и иметь утепление по всей высоте.  При высших мощностях диаметр трубы должен быть еще больше.

 

 

 

С уважением, Горобей Алексей

           

           

 

boiler40.narod.ru

Саморобний піролізний котел: особливості — Опалення

Основні етапи створення саморобного піролізного котла

  • Конструкційні особливості обладнання
  • Переваги піролізних котлів
  • Креслення — невід’ємна частина підготовчих робіт
  • Один з оригінальних варіантів створення котла

Якщо в місцевості відсутні вугілля і дешева електроенергія (або газ) для опалення будинку, не варто зневірятися. Саморобний піролізний котел, в основі роботи якого лежить використання дров, вирішить дану проблему. Про те, як його правильно зробити, і йтиметься далі.

Принцип роботи піролізного котла.

Конструкційні особливості обладнання

Варто відзначити, що в залежності від місцезнаходження камери допалювання піролізний котел буває:

  • з нижньою камерою;
  • з верхньої камерою.

Найбільш поширеним устаткуванням є котел на дровах з нижньою камерою. Він відрізняється більш зручною закладки дров. Камера безпосередньо пов’язана з димовим трактом. Дим направляється в димохід.

Єдиним недоліком саморобних піролізних котлів з нижньою камерою є те, що камера допалювання в процесі роботи наповнюється золою. В результаті чого доводиться періодично здійснювати чистку.

При верхньому розташуванні камери згоряння вихід димових газів відбувається за допомогою спеціальних форсунок. Вступаючи в димохід, вони піддаються охолодженню. Головний «мінус» таких саморобних піролізних котлів — це дорожнеча створення системи опалення.

У порівнянні зі звичайним котлом (з прямим горінням), піролізний котел володіє більшою за розмірами камерою горіння.

Дана опалювальна система повинна оснащуватися накопичувачем теплової енергії (баком). Це призведе до рівномірного функціонування котла, а також будуть усунені перепади в продуктивності устаткування, що виникають внаслідок різних стадій горіння палива.

Котел має топку, яка складається з двох частин:

  • камери завантаження;
  • камери згоряння.

Схема пристрою піролізного котла.

У першій частині горять дрова. Через недостатню кількість кисню відбувається піроліз палива. Догорання газів, які виділяються в процесі горіння дров, відбувається в камері згоряння, в яку відбувається подача повітря.

Відмінною особливістю саморобних піролізних котлів є те, що піролізний газ з’єднується з вуглецем. Внаслідок цього утворюється димі зовсім відсутні шкідливі речовини. Обидві частини котла опалення поділяються колосниками, на яких укладаються брикети. Потоки повітря крізь дрова направляються зверху вниз.

Дані опалювальні системи характеризуються підвищеним аеродинамічним опором. У зв’язку з цим вони оснащуються примусовою тягою. При наявності котла невеликого розміру використовується вентилятор. Якщо встановлений великий піролізний котел, краще скористатися потужним димососом.

Повернутися до змісту

Переваги піролізних котлів

Температура на вулиці і в будинку, наявність утеплення будівлі, тип і стан палива, правильність проектування опалювальної системи і багато інші фактори безпосередньо впливають на особливості роботи котельного обладнання.

Але вже зараз не викликає сумнівів те, що саморобний піролізний котел є більш ефективним обладнанням, у порівнянні з традиційними аналогами. При спалюванні дров і горіння деревного газу не потрібно великого обсягу повітря. З цієї причини збільшується час горіння з одночасним підвищенням температури, що значно покращує ефективність опалювальної системи.

Схема підключення піролізного котла.

Характерними рисами для піролізного котла є:

  • мінімальна пожежонебезпека;
  • невелика собівартість по влаштуванню обладнання;
  • можливість використання будь-яких відходів з деревини (тирси, тріски тощо), пластику та гуми;
  • тривале тління дров призводить до рівномірного розподілу теплової енергії;
  • відсутність сажі;
  • максимальний час забезпечення будинку комфортною температурою;
  • робота котла на одній закладці дров від 18 до 28 годин.

Щоб спорудити самому піролізний котел, нам знадобляться:

  • електрична дриль;
  • болгарка;
  • шліфувальні круги діаметром 12,5 і 23 см;
  • зварювальний апарат;
  • сейф із двох дверей;
  • електроди;
  • вогнетривка цегла;
  • сталевий лист товщиною 4 мм;
  • круглий прут;
  • профільні труби;
  • вентилятор-димосос;
  • колосники з чавуну;
  • дверцят для топки і піддувала;
  • терморегулятор;
  • азбестовий шнур;
  • болти і гайки.

Повернутися до змісту

Креслення — невід’ємна частина підготовчих робіт

Перш ніж спорудити самому піролізний котел, потрібно:

  • дізнатися про всі особливості опалювальної системи;
  • для визначення оптимального виду горіння провести точні розрахунки;
  • здійснити креслення по компактному розташуванню всіх елементів системи опалення.

Лише якісна обв’язка і точний підбір потужності котельного обладнання стануть запорукою ефективного функціонування системи опалення.

Відразу необхідно визначити оптимальну кількість матеріалів і місцезнаходження котла. Їх розрахунок проводиться на основі креслення, який відобразить всі елементи опалення. В обов’язковому порядку креслення повинен містити елементи подачі води, теплообмінник і топку.

Наступна процедура — це нанесення на папір всіх елементів котла. Слід зазначити, що дане обладнання не піддається процесам розмерзання або витоку. Адже в якості теплоносія виступає повітря.

Здійснивши відповідні креслення, можна сміливо приступати до монтажних і випробувальних робіт. При проведенні якісного складання котел запустить опалювальну систему протягом 30-45 хвилин.

Повернутися до змісту

Один з оригінальних варіантів створення котла

котел можна Зробити своїми руками навіть у тому випадку, коли труба була виведена нижче рівня даху. Дана проблема цілком дозволяється шляхом установки димососа. На відстані 40-45 см від крайньої частини димоходу здійснюється монтаж коліна розтрубом назовні. При використанні гофрованої труби коліно з’єднується з вентилятором. Він буде нагнітати повітря в димохід.

В якості основи для котла можна використовувати вогнетривкий сейф, який складається із двох дверей (або два сейфа). Попатравши зсередини його, дверки заварюють і роблять дві вставки. Щоб збільшити площу теплообміну, в конструкцію вваривать 15-20 труб.

Далі вирізається отвір і вваривается топкова горловина. Нижні кути всередині топки обкладаються вогнетривкою цеглою. Так досягається нормальний розподіл повітряних потоків через колосники.

Кожух котла робиться з оцинковки. Його нижня частина складається з колосникових грат і піддувала. Дверцята піддувала обладнується трубою, яка має поворотну заслінку і призначена для регулювання кількості надходить первинного повітря. Подача вторинного повітря здійснюється з допомогою розподільної коробки, розміщеної над топкової дверкой.

Розподільна коробка з’єднується з котлом за допомогою трьох труб (з нержавіючої сталі), які заведені всередину нього в строго горизонтальному напрямку. З торцевої частини труби закладаються заглушками. Знизу труб свердлиться три ряди отворів діаметром 2-3 мм на відстані 22-25 мм один від одного. Їх основна функція — рівномірний розподіл повітряних потоків у верхній точці горіння.

Саморобний піролізний котел: особливості

Короткий опис статті: саморобні котли на дрова Як зробити саморобний піролізний котел. Конструкційні особливості і переваги обладнання. Креслення – невід’ємна частина підготовчих робіт. Створення піролізного котла із сейфа. котел піролізний зробити дрова камера

Джерело: Саморобний піролізний котел: особливості

Post Views: 131

opalennia.com

Чи варто робити піролізний котел своїми руками?

Сьогодні багато бажають побудувати піролізний котел своїми руками, оскільки вважають, що це пристрій має високу ефективність роботи і здатна задовольнити всі потреби людини в теплоті. Принцип дії піролізного котла заснований на особливому спалюванні палива, яке носить однойменну назву. Часто такий процес називається сухою перегонкою.

eee186e3847c32a47fc2d29a0d07899c Чи варто робити піролізний котел своїми руками?

Якщо сильно захотіти — можна зробити піролізний котел своїми руками

При температурі в діапазоні від 200 до 800 градусів за Цельсієм, в умовах певного недоліку кисню, деревина розкладається на твердий залишок у вигляді деревного коксу, а також піролізний газ. Після цього отриманий газ змішують з киснем, що активізує процедуру горіння при досить високих показниках температури.

f9e7546c953fd6b29586f1745fcc4ef6 Чи варто робити піролізний котел своїми руками?

Робота піролізного котла заснована на особливому спалюванні палива

У той же час піролізний газ вступає у взаємодію з вуглецем, з-за чого дим, який виходить з такого котла, практично не містить ніяких шкідливих сполук. При цьому тверда частина буде згоряти з виділенням певної кількості теплоти. Варто зауважити, що піроліз є екзотермічним процесом і супроводжується виділенням тепла, що використовується для сушіння і підігріву повітря, що подається і палива.

Переваги і недоліки

До переваг таких систем можна віднести здатність досить довго підтримувати в автономному режимі задану температуру теплоносія. Таке можливо за рахунок більш високих показників ККД, а також наявності більшої завантажувальної камери. У продуктах горіння містяться мінімальні концентрації канцерогенних речовин. Це позитивно позначається як на стані навколишнього середовища, так і на здоров’я людей.

31d7d00c8a02a2b760a8f92eb4bc38ee Чи варто робити піролізний котел своїми руками?

Всім управляє ось такий невеликий електронний блок

Подібні котли також дозволяють людині деякі відходи, в числі яких залишки полімерів, ДВП, ДСП, гуми і т. д. Дуже важливо, щоб додаткових компонентів в паливі не було більше 30 відсотків. В іншому разі не виключені серйозні проблеми. Вони можуть полягати як у неправильності протікання процесу горіння, так і в повному виході з ладу піролізного котла.

Все було б дуже добре, якби такі котли не мали недоліків. До негативних сторін такого обладнання можна віднести:

  • висока вартість. Знизити вартість котла можна тільки в тому випадку, якщо виготовити його самостійно;
  • якщо котел буде закладено паливо підвищеної вологості, то горіння буде неможливим. В результаті суттєво знижується ККД, в той час як більша частина теплової енергії буде залишати котел разом з продуктами горіння і парою;
  • досить великі габаритні розміри;
  • енергозалежність піролізних котлів. Щоб таке обладнання працювало нормально, йому потрібно організувати постійне підключення до мережі електроживлення. Обумовлено це тим, що в котел потрібно встановити невеликий вентилятор, що підтримує примусову тягу.

Класична схема

У піролізного котла основна конструктивна особливість полягає в кількості камер згоряння. Тут їх дві. Така кількість відсіків дозволяє максимально ефективно і якісно використовувати процес піролізу. Навіть самий звичайний піролізний котел буде розташовувати двома камерами згоряння.

Перша камера, яку ще називають камерою завантаження, призначена безпосередньо для піролізу палива. Даний процес може протікати тільки в тому випадку, якщо в камері буде знаходитися обмежену кількість кисню. Тут дрова будуть розкладатися на газ і твердий залишок. Після розкладання гази будуть потрапляти в другу камеру, паралельно яким подається і вторинний повітря, що сприяє поліпшенню горіння.

Обидві камери між собою розділені колосником, на який укладаються брикети. Черговий особливістю виготовлення такого котла можна вважати верхнє дуття. Зазвичай через те, що в топці є підвищений аеродинамічний опір, використовують примусову тягу. У такому випадку організація тяги здійснюється за допомогою дуттєвого вентилятора або ж димососа.

Як щодо вартості складання системи?

Якщо створювати піролізний котел своїми руками, то процес будівництва складно віднести і до простим і дешевим. Так що перед тим, як приступати до робіт по спорудженню котла, краще вивчити інформацію, і оцінити власні сили і можливості. Подібний підхід до справи дозволить заощадити не тільки час, але і гроші. Якщо ж ви прийняли рішення самостійно будувати котел, тоді ви можете розраховувати на економію коштів аж до 2 тисяч умовних одиниць.

Багато умільці в останні роки збирають такі котли власноруч. Деякі з таких ентузіастів абсолютно безкоштовно діляться власним досвідом на теренах форумів. Деякі ж готові надавати інформаційну підтримку і схему виробництва котла тільки після отримання грошової винагороди. Крім цього, існують цілі фірми, основне заняття яких полягає в розрахунку подібних пристроїв.

Який з варіантів проектів вибирати в процесі будівництва свого піролізного котла, вибирати виключно вам. Але, напевно, спочатку краще вивчити всю інформацію, що знаходиться у відкритому доступі, після чого приступати до платних джерел. І те, до платним консультантам краще звертатися тільки при наявності сумнівів у своїх силах. Варто пам’ятати про те, що навіть якщо людина купить проект котла, а не готовий апарат, то заплатить набагато менше, чим за придбання раніше виробленого обладнання.

Установка і безпека

Після того, як визначилися з проектом, відшукали креслення для піролізного котла своїми руками виготовили котел, варто подбати про правильність його установки. І тут найбільше грає роль не технічна сторона, а правила протипожежної безпеки. Якщо не дотримуватися цих правил, то можна нарватися на досить великі штрафи. В самих неприємних ситуаціях мова йде зовсім не про гроші, а про здоров’я і життя людей.

e6517ef589a399929fa0be6b506db4a9 Чи варто робити піролізний котел своїми руками?

Всі складові піролізного котла можуть зайняти багато місця — так що без котельні не обійтися

Таким чином, подібне обладнання потрібно встановлювати в котельні. Основу під такий котел потрібно виготовляти з бетону або цегли. Перед камерами топок потрібно встановити лист металу, товщина якого буде перебувати в районі 1,5-2 мм Від стін і меблів, які будуть розташовуватися навколо котла, відстань не повинна бути меншою 20 сантиметрів.

Котельня повинна мати вентиляційним отвором, загальна площа якого складає не менше 100 квадратних сантиметрів. Обумовлюється це тим, що процес горіння в піролізних котлі вимагає постійної подачі свіжого повітря. Дуже важливо організувати утеплення димоходу фольгированной мінеральною ватою. Охолодження газу в системі димовідводу спричинить утворення в ньому дьогтю і конденсату, а це не кращим чином позначається на збереження і довговічності конструкції.

Хороша альтернатива котлів

Багато з зібрали такі установки у себе вдома умільців говорять про те, що виготовлення такого котла з потужністю менш як півтора десятка кВт сенсу не має. Але як бути тим людям, у яких площа будинку не вимагає більш потужного обладнання? У таких випадках потрібно подивитися на піролізні піч, яка багато в чому нагадує все той же котел. Це цілком нормально, оскільки принцип протікання процесу горіння є аналогічним.

Щоб виготовити таку піч, необхідно запастися:

  • шамотною цеглою;
  • керамічною цеглою;
  • вентилятором наддуву;
  • сталевим листом з товщиною близько 4 міліметрів;
  • чавунними колосниками;
  • дверцями для піддування та топкової камери;
  • важільним терморегулятором.

76f08109757147fb827c5b61b771b90f Чи варто робити піролізний котел своїми руками?

Для невеликого будинку можна зробити піролізний котел з цегли

Якщо використовувати 3 чавунних колосника, 400 керамічних і 100 шамотні цеглини, а також лист металу розміром 1,5 на 6 метрів, можна отримати піч потужністю в 25 кіловат. Такий продуктивності з головою вистачить на опалення будинку площею 60 квадратних метрів. Якщо навіть така потужність буде зайвою, скоротити її показники можна за рахунок зменшення габаритів піролізної печі.

Варто сказати, що основною причиною переходу більшої частини міських жителів сіл і міст з дров’яних котлів на газові є тривалість автономного функціонування останнього варіанту. У гонитві за зручністю людство почало втрачати щось дуже важливе, на що довго ніхто не звертає увагу. Ті ж, хто хоч колись мав у своєму розпорядженні дров’яну піч, ніколи не зможе забути особливого тепла, яке йшло від неї. Подібні речі дуже актуальні на дачних ділянках, куди багато приїжджають відпочити від міста і усамітнитися для спілкування з природою.

Різновид піролізних котлів

Все-таки правильніше називати такі пристрої газогенераторными котлами. Піроліз – це перша фаза горіння деревини, і спостерігати його можна в будь-якому котлі або печі. Що стосується піролізних котлів, то в їх конструкції є перемикач тяги, необхідний для розпалювання котла. Після того, як котел розігріється, закривають засувку, тим самим переводячи його в режим піролізу.

В залежності від розташування камери допалювання виділяють котли:

  • з верхньої камерою;
  • з нижньою камерою.

c05ab43f0c131f827b9c16875b4c31a6 Чи варто робити піролізний котел своїми руками?

Найпопулярнішим є котел з нижньою камерою горіння

Останні, по суті, є найбільш поширеними, і цьому є логічне пояснення. Така конструкція дозволяє більш зручно закладати дрова в камеру горіння, в той час як камера допалювання виходить безпосередньо в димовий тракт. Дим, піддаючись тязі і слідуючи усім законам фізики, рухається в димохід. Подібна система для багатьох є цілком логічною, але тут є деякі недоліки. З первинної камери згоряння зола потрапляє в камеру допалювання, з-за чого потрібно частіше проводити чистку системи. Крім цього, потрібно створювати сильну тягу, щоб направити дим вниз.

Котел з розташованої зверху камерою допалювання не так поширений, як його попередній аналог. Дана конструкція має свої переваги, які полягають в тому, що димові гази через спеціальні форсунки, піддаючись законам фізики, виходять в камеру згоряння, де і згорають. Після вони надходять в димар, там відбувається охолодження. Недоліком такої системи можна вважати більш витратний спосіб споруди димохідного тракту, на який потрібно більше матеріалу.

Так що піролізні котли можуть вважатися прекрасною альтернативою котли прямого горіння. Порівняно з останніми, піролізний варіант має більшу камеру горіння, але даний вид котла вимагає наявності в системі бака – накопичувача теплової енергії.

Це потрібно для того, щоб забезпечити рівномірність роботи котла, яка піддається коливанням із-за перепадів продуктивності, пов’язаних з різною ефективністю фаз горіння палива. Все це робить піролізний котел хорошим запасним джерелом у системі з газовим або електричним котлом.

Але як основне джерело тепла піролізний котел може використовуватися тільки у разі організації якісної обв’язки і правильного підбору потужності. Так що для використання піролізного котла дуже важливо мати високу кваліфікацію в процесі проектування, а також якісно і правильно виконати монтаж всієї системи опалення. Втім, кожен має право вибирати для себе щось більш підходяще, і якщо людина впевнена у своїх силах, чому б не спорудити такий котел самостійно. Тим більше, що інтернет надає для виготовлення піролізних котлів своїми руками – схеми, фото – та відеоматеріали, що істотно спрощують всі роботи.

dovidkam.com

Як зробити саморобний піролізний котел і що потрібно для зборки — Опалення

Переваги і недоліки саморобного піролізного котла

Як зробити саморобний піролізний котел і що потрібно для зборки1 Квітень 2014 Як зробити саморобний піролізний котел і що потрібно для зборкиОлексій

Як зробити саморобний піролізний котел і що потрібно для зборки

Тепло і затишок в будинку неможливі без системи опалення, особливо в північних регіонах країни, де холодна погода можлива навіть влітку.

Але підтримувати в приміщенні комфортну температуру можна тільки за допомогою котла. Це обладнання досить дороге і до того ж існує кілька видів працюють на різних видах палива.

А так як централізована подача газу і електрики доступна не у всіх заміських селищах, то найбільш часто вибирають твердопаливні апарати. Одним з найбільш ефективних з них є газогенераторний. Але висока ціна на нього робить обладнання доступним не кожному. Тому часто використовують піролізний саморобний котел. Але чи легко зібрати його самому? Відповідь на це питання ви знайдете в статті.

Зміст:

Переваги і недоліки саморобного апарату

Як зробити саморобний піролізний котел і що потрібно для зборкиВ якості рекомендації як збирати саморобні піролізні котли можна використовувати відео або креслення, але насамперед необхідно усвідомити принцип їх роботи.

У твердопаливних апаратів тривалого горіння він заснований на руйнуванні молекулярної структури органічних сполук (деревини) під впливом високої температури і низької концентрації кисню.

Ця реакція призводить до розпаду молекул на летючі структури (піролізні гази і тверді залишки (вугілля). Але цей процес відбувається частково при відносно невисокій температурі і вільному доступі повітря, яскравим прикладом тому може служити звичайний багаття.

При його горінні виділяється велика кількість диму, який забирає в атмосферу всі незгорілі леткі речовини. І тільки при зміні умов на протилежні, досягається повне згоряння піролізних газів і мінімальний викид шкідливих речовин в атмосферу.

Дивимося відео, принцип роботи піролізу:

Досягти таких показників можливо при використанні твердопаливного апарату тривалого горіння, який може бути як промислового виробництва, так і зібраним самостійно, знайти креслення піролізного котла сьогодні можна дуже просто. Як це зробити, і які матеріали знадобляться, розглянемо більш детально.

Опалювальне обладнання, робота якого заснована на процесі спалювання не тільки твердих видів палива, але і деревного газу одержуваного при горінні, має ряд переваг у порівнянні з іншими моделями.

До них відносяться:

    Високий ККД Мінімальні викиди канцерогенних речовин Можливість утилізації відходів, що містять шкідливі домішки

Але є у них і негативні сторони – це висока вартість, залежність від електрики і можливість застосування тільки сухих дров, з максимально допустимою вологістю не більше 20%.

Саме ці якості і стримують попит на це обладнання, хоча для заміських селищ воно часто є єдино можливим для використання. Можливо, ці причини і стали своєрідним поштовхом до того, що все частіше застосовуються піролізні саморобні котли.

Опалювальний апарат зібраний своїми руками

Як зробити саморобний піролізний котел і що потрібно для зборкиПерш, ніж приступати до складання складного обладнання варто запастися знаннями, знайти необхідні креслення, схеми піролізних котлів, купити вузли і деталі.

Як бачите, потрібно не так вже й мало, тому перш ніж зважитися на цей крок, подумайте і грунтовно. Чи зможете ви впоратися з таким завданням або краще купити промисловий апарат?

Якщо ви повністю впевнені в своїх силах, то перш, ніж збирати піролізний саморобний котел тривалого горіння потрібно познайомитися зі схемою пристрою і провести розрахунки, які дозволять правильно підібрати матеріали і деталі.

Знайти інформацію можна на просторах мережі або замовити у фірмі, що спеціалізується на проектуванні опалювального обладнання. Який варіант вибрати-залежить від суми, яку ви готові витратити на все необхідне для складання, і ваших знань. Але попередньо не завадить вивчити всю доступну інформацію з безкоштовних джерел і лише потім звертатися до платних послуг.

Дивимося відео, про пирилизном котлі зроблене своїми руками, все поетапно:

Фахівці теплотехніки зможуть впоратися з цим завданням самостійно, розробивши власні креслення піролізного котла або взявши за основу класичну схему. Однак сам процес складання до занадто простим не відноситься, та й грошей у нього доведеться вкласти не мало. Звичайно, у порівнянні з промисловим зразком, ви зможете розраховувати на хорошу економію, яка в кращому випадку буде досягати 2000 умовних одиниць.

Після того, як був обраний проект і знайдені креслення піролізних саморобних котлів для виготовлення всіх вузлів, можна приступати до покупки необхідних деталей.

    Сталеві листи товщиною не менше 4 мм для зовнішніх стінок та 3 мм для внутрішніх деталей Труби з діаметром до 32, 57 і 159 мм Профілі – 60х30 і 80 х 40 Сталеві смуги шириною 20 і 80 мм Вентилятор (дутьевой) Температурний датчик Кріпильні вироби

З інструментів необхідні:

    Зварювальний апарат з електродами Шліфувальні машинки під кола діаметром 125 і 230 мм Дриль електрична

Це тільки основні інструменти і деталі, можливо в процесі роботи знадобляться й інші матеріали, які не матимуть значного впливу на вартість і швидкість збірки.

Маючи все необхідне під руками і в тому числі креслення піролізних котлів представлені на малюнку, можна приступати безпосередньо до монтажу. Якщо ви володієте інженерними навичками, то зможете легко їх удосконалити, але при цьому слід пам’ятати, що розмір внутрішньої камери не повинен зазнавати серйозних змін, інакше це негативно позначитися на роботі всього обладнання.

Як зробити саморобний піролізний котел і що потрібно для зборкиПісля проведення підготовчих робіт і безпосередньо складання котла приступають до його встановлення. Тут головна роль відводиться не стільки технічній стороні, скільки правилами пожежної безпеки. Їх недотримання може бути загрожує непередбаченими ситуаціями. Тому, виконавши всі складальні роботи, приступають до обладнання спеціальної котельні, в якій буде встановлено обладнання.

Основою під піролізний котел Благо, креслення якого подано вище, може служити бетонна стяжка або цегляна кладка, а перед топковими камерами повинні встановлюватися металеві листи товщиною не менше 1,5 мм Відстань від стін і меблів залишають не менше 20 мм

Котельна повинна бути обладнана вентиляційним отвором, площею не менше 100 мм?, димохід котла необхідно утеплити фольгированной мінеральною ватою, для запобігання утворення конденсату.

Креслення піролізного котла на відпрацьованому маслі

Опалювальне обладнання використовується сьогодні не тільки для обігріву житлових і адміністративних будівель. Воно працює в промислових цехах, лазнях, гаражах та інших промислових об’єктах. Для їх опалення може бути встановлений апарат будь-якого типу, але ідеальним для таких приміщень є котел, в якому в якості палива застосовується відпрацьоване масло.

Дивимося відео, непогана збірка котельного обладнання:

Його головною перевагою є повна незалежність від інших джерел живлення. А у випадку встановлення автономного генератора він може бути повністю автономним.

Піролізні котли на відпрацьованому маслі, в яких застосовуються пальника Kroll і здійснюється підігрів палива перед спалюванням, вважаються одними з найбільш ефективних, а за витратами найбільш економічними. Так як відпрацьоване масло найчастіше поставляється безкоштовно або пропонується за символічну плату. Їх ККД досягає 95% при мінімальних викидах шкідливих речовин в атмосферу.

Однак котли на відпрацьованому маслі мають і ряд недоліків:

    Для них необхідні паливні ємності Потрібна установка компресора для вироблення стиснутого повітря, необхідного для роботи апарату Потребують регулярного очищення

Схеми для складання та вартість комплектуючих

Знайти необхідні креслення в мережі досить просто. Але ось вибір конкретної моделі залежить від багатьох причин. Наприклад, для власника автомайстерні в якості опалювального обладнання службових приміщень самим ідеальним котлом буде той, в якому в якості палива застосовується відпрацьоване масло.

Збирати саморобний піролізний котел можна, використовуючи креслення або взявши в якості основи вже наявний опалювальний апарат. Але в будь-якому випадку будуть потрібні додаткові комплектуючі:

    Пальник Насос, Розширювальний бак, Насос циркуляційний Компресор

Для складання ще потрібно зварювальний апарат та навички щодо його використання. Але перш ніж приступити до втілення цієї ідеї в життя необхідно заздалегідь подбати про обладнання котельні. Під піролізні котли на відпрацюванні в приміщенні повинен бути виконаний димар, що складається з труби і кожуха, запобігає зіткнення конструкції з стелею.

Ще одна необхідна деталь – це заслінка, вона дозволить регулювати надходження повітря, запобігаючи охолодження приміщення в разі вимкнення котла.Тільки після правильного виконання усіх підготовчих і складальних робіт можна приступати до установки апарату і його експлуатації.

Дотримуємося вимоги безпеки

Як зробити саморобний піролізний котел і що потрібно для зборкиОпалювальне обладнання вимагає створення певних умов для ефективної роботи. Одним з них є необхідність провітрювання приміщення, в якому встановлений апарат. Це пов’язано з типом пальника.

Найчастіше саморобний піролізний котел на відпрацювання має відкриту пальник і спалює кисень, що знаходиться в кімнаті.

Щоб уникнути отруєння чадним газом потрібно її регулярне провітрювання.Наступним умовою є правильне місце розташування апарату. Поруч з ним не повинно бути ніяких горючих матеріалів.

Для зручної експлуатації та обслуговування котел слід розміщувати таким чином, щоб до нього було зручно доливати паливо.Якщо ви вирішите надати йому більш естетичний вигляд, то для фарбування корпусу можна використовувати тільки жаростійку фарбу або лак.

Купуємо або збираємо?

Як зробити саморобний піролізний котел і що потрібно для зборкиВсе частіше при виборі опалювального обладнання звертають увагу не лише на його вартість, але й тип палива. Найбільш вигідним вважається газ, але не всі населені пункти підключені до центральної магістралі, і для таких випадків ідеальними вважаються піролізні апарати.

Проте із-за їх високої вартості широкого поширення дане обладнання не отримало, але його принцип роботи використовують у своїх розробках ті, хто вирішив заощадити і зібрати його самостійно. Якщо вас зацікавили саморобні піролізні котли, креслення для їх виготовлення можна знайти в мережі, а далі залишиться тільки зібрати апарат і встановити його в своєму будинку.

Цей варіант підходить для тих, хто має інженерні навички і зможе впоратися з цим завданням. В іншому випадку краще скористатися промисловими моделями, які представлені в широкому асортименті і кожен зможе вибрати найбільш підходящий для себе апарат.

Короткий опис статті: саморобні котли на дрова Піролізні котли на відпрацьованому маслі – купувати або зібрати самостійно? Схеми, креслення, комплектація і вартість – все, що потрібно знати, перш ніж приступати до складання. піролізний котел на відпрацьованому маслі схема креслення

Джерело: Як зробити саморобний піролізний котел і що потрібно для зборки

Post Views: 160

opalennia.com

Як зробити котел піролізного горіння — відео уроки

На значній території Росії дрова раніше самий доступний вид палива й багато опалюються дров’яними котлами. Все б нічого, але у звичайних твердопаливних котлах закладка прогорає за 2-3 години, що зовсім незручно — будинок надовго не залишиш. Є котли тривалого горіння. У них одна закладка дров може горіти до 8-10 годин, але коштують вони солідних грошей. Проте, як завжди, вихід є — зробити піролізний котел своїми руками. Не сказати, що це проста робота — навички зварювання повинні бути на високому рівні, так і матеріали коштують чимало. Тим не менш, саморобних пиролизников багато.

Принцип роботи піролізного котла

Зміст статті

  • 1 Принцип роботи піролізного котла
  • 2 На що звернути увагу при виготовленні
  • 3 Скільки будуть коштувати матеріали і запчастини
  • 4 Відео-проект піролізного кола, процес складання

Стосовно до опалювальних котлів називається піролізом горіння палива при недостатній кількості кисню. При цьому паливо виділяє велику кількість газів, практично всі з них горючі. Ці гази направляються в спеціальну камеру згоряння і допалювання, куди подається вторинний повітря. Газоповітряна суміш спалахує, виділяючи велику кількість тепла. Теплової енергії виділяється набагато більше, ніж можна отримати при звичайному горінні дрів або вугілля. Справа в тому, що багато з утворилися при горінні палива летких речовин, мають дуже високу температуру згорання. В результаті, з тієї ж кількості палива, піролізні котли отримують більше тепла.

Із-за особливостей процесу горіння (виділення великої кількості газів) такі установки називають ще газогенераторными котлами.

Конструктивна особливість піролізних котлів — топка, складається з двох камер. В одну закладається паливо (часто це верхня частина топки), в ній же відбувається виділення газів, і тому ця частина називається камерою газогенарации. Через нешироку горловину гази потрапляють в другу камеру допалювання. Тут перемішуються з вторинним повітрям, спалахують і згорають практично без залишку.

fd27898d7e23e1edc6bdf24e081d1391 Як зробити котел піролізного горіння — відео уроки

Піролізний котел з нижньою камерою допалювання

У середньому ККД пиролизников — вище 85%. Є моделі, здатні видавати 92% і навіть трохи більше. Але дані показники можливі лише при використанні сухого палива. Його вологість повинна бути 5-8%. При 40% вмісті вологи горіння може повністю згаснути, а при 20% просто буде неефективним. І це — один з головних недоліків цієї технології: дрова і вугілля доводиться попередньо сушити, наприклад, зробивши майданчик біля димаря. Просто дрова, просушені в дровнике не підуть, як і вугілля, взятий з купи на вулиці.

У відео продемонстровано котел, в якому камера допалювання знаходиться вгорі. Хоча котли такого типу мають більш просту будову (утворилися гази самі піднімаються вгору), саморобщики воліють камеру з нижнім располодением камери допалювання (як на фото вище).

На що звернути увагу при виготовленні

Якщо ви збираєтеся робити піролізний котел своїми руками, вам треба чітко уявляти не тільки механізм і принцип його роботи, але і враховувати всі неприємні моменти, якими дані агрегати мають. В першу чергу необхідно сказати про те, що практично всі піролізні гази отруйні. Тобто, агрегат повинен бути повністю герметичним, зварні шви повинні бути вищої якості.

Крім того, для забезпечення безпеки необхідна система контролю за процесом горіння (датчики температури, диму, наявності тяги) і автоматика, яка в залежності від показань датчиків регулює процеси горіння. Якщо саморобний піролізний котел збираєтеся робити на природній тязі, автоматика може бути найпростішої — енергонезалежною. При наявності вентилятора наддуву для подачі повітря в току, потрібні вже більш серйозні (і дорогі) пристрою, а вони живляться від мережі 220 В. Робота котла такого типу без автоматики небезпечна, тому необхідний джерело безперебійного живлення, який забезпечить роботу вентилятора і автоматики на 10-12 годин — час горіння закладки.

8035899d964249e728c983fe405d86c7 Як зробити котел піролізного горіння — відео уроки

Приблизна компонування піролізного котла

Другий момент. У деяких моделях пиролизников температура в активній фазі досягає 1000°C і вище. Звичайна конструкційна сталь при таких умовах швидко прогорить. Щоб котел існував довго, необхідна жаростійка сталь і внутрішня футеровка самих термонагруженных частин. Якщо піролізний котел роблять своїми руками, футеровку найчастіше роблять із шамотної цегли. В робочій фазі шамот розігрівається до малинового світіння і стає дуже крихким. Якщо раптом вам доведеться в цей час орудувати в печі, будьте акуратні — пошкодити футеровку в даний момент легко, а ремонтувати — довго і складно.

Скільки будуть коштувати матеріали і запчастини

Скільки точно буде коштувати піролізний котел, зроблений своїми руками, залежить від необхідної потужності і обраної конструкції. Однак, якщо купувати жаростійкий сталь, колосники, робити футеровку, ставити автоматику (нехай і недорогу), сума набігає 850-1200$. Це витрати на матеріали і компоненти, але з самостійної зварюванням. Вони озвучені тими, хто вже пиролизник зварив і використовує. Якщо за зварювання доведеться платити, то витрати треба подвоїти.

Як бачимо, у випадку володіння зварюванням, економія є, але далеко не найбільша. Можна знайти готові варіанти твердопаливний піролізних котлів за 1500$. Хоча, як відомо, дешевий товар має низьку ціну не просто так. На чому там заощадили. І навіть можна припустити на чому: на футерівки. Саме секрети запобігання стінок топки від перегорання бережуть виробники більше всього, і витрачають на дослідження в цій галузі великі гроші. Тому якісне обладнання і коштує великих грошей.

Відео-проект піролізного кола, процес складання

dovidkam.com

Котел піролізний своїми руками | Ремонт та вироби своїми руками

Зміст статті

    • 0.1 Суть процесу піролізу
  • 1 Основні характеристики піролізних котлів
      • 1.0.1 Процес управління роботою піролізного котла
    • 1.1 Процес виготовлення піролізного котла
      • 1.1.1 Нюанси з паливом
      • 1.1.2 Будуємо піролізний котел на «відпрацювання»
      • 1.1.3 Будуємо котел горизонтальний газогенераторний
        • 1.1.3.1 Додаткове оснащення піролізних котлів
      • 1.1.4 Котел піролізний своїми руками: відео

Кажуть, що усі новинки – це добре забуте старе. Не є винятком і створення опалювальний систем на базі піролізних печей. Перші заводи, що використовують технологію піролізу були побудовані ще в 70-ті роки позаминулого 19-го століття. Досі ця технологія широко застосовується і у нас і за кордоном для переробки нафти. Власне «піроліз» це процес хімічного розкладання органіки під дією високої температури. У пристроях, що використовують тверде органічне паливо (як правило, дрова) тверда частина і виділяються з нього при температурному розкладанні гази згоряють окремо, що істотно підвищує ефективність таких печей. Незважаючи на складну назву і мудроване опис процесу ви цілком можете побудувати котел піролізний своїми руками.

Котел піролізний своїми руками

Котел піролізний своїми руками

Суть процесу піролізу

В піролізних котлах на твердому паливі використовуються такі типи органіки, які при температурному розкладанні дають великий вихід летких горючих речовин. Піролізні котли працюють не тільки на дровах (і всіх видах палива з деревини, таких як пелети, або паливні брикети), але і на вугіллі, аж до коксівних марок.

Котел піролізний своїми руками

тління палива

Паливо в піролізних котлах розміщується на колоснику. Після підпалу завантаженої партії палива, закривається щільна дверцята і починає працювати димосос. Внаслідок цього в камері згоряння піднімається висока, до 800 градусів температура, проте в ній відсутня кисень з повітря для звичайного інтенсивного горіння. Замість цього органічне паливо тліє і обвуглюється, при цьому виділяються летючі гази, переважно вуглеводні.

Під дією конвекції горючі леткі газ надходять у подколосніковое простір. Разом з ними мігрує і азот, що перебуває в первинно наявному повітрі в топці. Під гратами колосника до суміші газів підмішується кисень з вторинного окнтура подачі повітря. Отримала суміш вже має здатність до згорання. Вона згорає, виконуючи корисну функцію (наприклад, нагріваючи воду в теплообміннику), а крім того выделившееся тепло надходить назад до органічному паливу і підтримує процес тління.

Основними рисами котлів ,що працюють на технології піролізу є наступні:

  • Можливість виготовлення з недорогих конструкційних матеріалів.
  • Тривалий час одного циклу піролізу, що досягає 30 годин,
  • Повна вибухо-і пожежо-безпека.
  • Простота конструкції, доступна для самостійного виготовлення.
  • Широкий спектр використовуваного деревного палива (від класичних дров до пелет).
  • Висока екологічність котлів, низька кількість продуктів згоряння.

Процес управління роботою піролізного котла

В звичайну піч вам доведеться завантажувати паливо мінімум через кожні дві години. Це є причиною великої інтенсивності горіння палива в печах такої конструкції. Більша частина тепла при цьому просто «вилітає в трубу». ККД таких котлів мінімальний, крім того, в ньому залишається багато залишків, які доводиться регулярно вигрібати.

А ось якщо обмежити приплив кисню, то період горіння значно збільшується. При цьому тепло виділяється не тільки при самому процесі тління-піролізу, але і від згоряння газів, що виділилися. Внаслідок цього час роботи від одного завантаження може збільшуватися до доби і більше.

Процес виготовлення піролізного котла

Відразу зазначимо, що піролізні котли можна використовувати не тільки для опалення. Але і для прямого обігріву невеликих приміщень.

Нюанси з паливом

Приємна новина для власників автомобілів: ваш піролізний котел можна буде «годувати» не тільки дрова, але і відпрацьованим машинним маслом. Ціна такої відпрацювання просто сміхотворна, а в піролізних котлі він буде горіти не гірше, ніж звичайні дрова. Але є нюанс: котел, «живиться» відпрацюванням повинен мати спеціальну конструкцію.

Будуємо піролізний котел на «відпрацювання»

Створити піролізний котел, що працює на відпрацюванні дуже просто. У ньому є дві ємності: нижня, в яку завантажується паливо і де воно проходить процес піролізу і верхню повітряну камеру.

Котел піролізний своїми руками

найпростіша піч піролізна

У нижню частину вваривается труба з товстими стінками, в якій робляться отвори. Власне в цій трубі і відбувається допалювання парів з «відпрацювання».

Котел піролізний своїми руками

схема печі піролізної

У верхній повітряної камери монтуються перегородки, які направляють гаряче повітря по звивистому маршруту, цим досягається підвищена віддача тепла від верхньої камери в приміщення.

Котел піролізний своїми руками

докладний опис конструкції піролізного котла

Через приварений до верхньої камері димар продукти згоряння видаляються в атмосферу.

Таку піч можна трохи вдосконалити. Для цього поряд з нижньої ємністю монтується дозаправочный бак, сполучені з нею трубою. Дозаправка відбувається за принципом сполучених посудин.

Але, зверніть увагу, в таку грубку категорично не допускається попадання води. Її не можна розміщувати в місці, де можливе випадання атмосферних опадів. При попаданні води тліюче масло спінюється і різко розширюється в об’ємі. Це може призвести навіть до разрывк окнструкции.

Також при створенні такої печі зверніть увагу, що висота димаря повинна становити не менше двох метрів.

Якщо ви оснастите верхню камеру печі такий водяною сорочкою, то вона цілком може нагрівати проходить через неї потік води. Також верхній бак може нагрівати і проходить повітря.

Котел піролізний своїми руками

промислові піролізні котли

Піролізний котел для деревних відходів

Можливо, у вас на ділянці накопичилося багато деревних відходів: трісок, тирси, стружки. Для того, щоб ефективно спалювати таке «сміття» можна побудувати піролізний котел. Такий пристрій стане незамінним помічником у деревообробних цехах.

Котел піролізний своїми руками

саморобний піролізний котел з бочки

Для створення такої печі витрачається мінімум матеріалів і а її конструкція надзвичайно проста.

Запасемося наступними матеріалами:

  • Металева бочка ємністю 200 літрів, в якій потрібно вирізати верхню кришку.
  • Кришка з бортиком, точно підходить до горловини бочки.
  • Круглий поршень з перетином, трохи меншим внутрішнього перерізу бочки. Його потрібно виготовити з масивної заготовки або штучно ускладнити.
  • Труба з перетином 10 сантиметрів і завдовжки, сантиметрів на 20 більше, ніж висота бочки.
  • Димохідна труба з перетином близько 10 сантиметрів та довжиною не менше 40 сантиметрів.
  • У щільно підігнаної за розміром зовнішньої кришці вирізається отвір з перетином, трохи більшим, ніж у труби, зазначеної в п «4», вона ж – «повітроводна труба». Димохідна труба вваривается у верхню частину бічної поверхні бочки.

    Котел піролізний своїми руками

    схема піролізного котла з бочки

    Повітроводна труба щільно приварюється до поршня. На верхньому торці воздуховодной труби розміщують рухому заслінку, що регулює обсяг подаваного повітря. До нижньої частини поршня приварюють ребра, які будуть утрамбовувати паливну масу.

    Котел піролізний своїми руками

    підгонка верхньої кришки

    Закладаємо в бочку будь сухе деревне паливо. Вантажити можна все, що завгодно, аж до паперу і шишок. Варто відзначити, що сухість вихідного палива дуже критична для піролізних котлів. Наповнюємо бочку на 23 її висоти. Зверху на дрова укладаємо тріски або папір і підпалюємо їх. Не забороняється плеснути кілька крапель бензину. Після того, як паливо загорілося – вставляємо поршень з воздуховодной трубою, закриваємо бочку верхньою кришкою. Паливо поступово прогорати і під власною вагою поршень буде опускатися.

    За тяжкістю поршня і без достатнього доступу кисню паливо в бочці буде повільно тліти. Виділяється при піролізі газ буде проникати в верхню частину бочки, де також буде згоряти. Найбільш буде нагріватися як раз верхня частина бочки, в цій частині температура повітря може досягати 900 градусів. Така температура повністю випалює навіть сажу.

    Котел піролізний своїми руками

    зовнішній вид поршня і воздуховода

    При гарній регулюванню і сухому паливі така піролізна піч може безперервно працювати на одній закладці до 30 годин.

    Будуємо котел горизонтальний газогенераторний

    200-літрову металеву бочку можна перетворити і в горизонтальний котел. Як і вертикальному варіанті – в такій печі будуть присутні капери піролізу (тління) і камера допалювання газів виділяються.

    Котел піролізний своїми руками

    горизонтальна піролізна піч

    Піролізний котел промислового виробництва.

    В принципі, піролізний котел можна придбати і в уже готовому вигляді. Сучасна промисловість пропонує безліч варіантів таких пристроїв на будь-який смак і гаманець.

    Котел піролізний своїми руками

    промислова піч піролізна

    Додаткове оснащення піролізних котлів

    Крім нагрівання навколишнього повітря піролізні котли можуть виконувати й багато іншої корисної роботи. Насамперед, звичайно, вони можуть підключатися до систем опалення з повітряним або рідким теплоноситеоем.

    Котел піролізний своїми руками

    піролізний котел з конвекцією

    Так, великою популярністю користуються конвекційні печі. У них застосовується принцип конвекції повітря. Для цього на котлі розміщуються спеціальні вигнуті повітроводи. Їх нижні патрубки забирають холодне повітря, а через верхні патрубки виходить вже гарячий.

    Котел піролізний своїми руками

    саморобний піролізний котел з конвекцією

    Ну і звичайно ж, ніхто вам не заважає обладнати будь котел трубопроводом-теплообмінником, який буде нагрівати воду для системи теплопостачання або система гарячого водопостачання.

    І в ув’язненні можете подивитися короткий відеоурок, що описує виготовлення та експлуатацію піролізного котла.

    Котел піролізний своїми руками: відео

    remontu.com.ua

    Саморобний піролізний котел своїми руками: конструкція і розрахунок

    Зміст:

    • Вихідні дані для обчислень
    • Конструктивні особливості
    • Виконання обчислень
    • Рекомендації по вибору матеріалів

    Оскільки котли, що працюють на твердому паливі, стали користуватися підвищеним попитом, їх вартість почала зростати. Це стосується як класичних простих агрегатів, так і піролізних і пелетних установок. Один з варіантів зменшення вартості – замовляти у майстрів або самостійно виготовити піролізний котел своїми руками.

    Саморобний піролізний котел своїми руками: конструкція і розрахунок

    Креслення піролізного котла

    Вихідні дані для обчислень

    Істотне зниження ціни саморобного агрегату досягається за рахунок правильного підбору та закупівлі матеріалів і комплектуючих. Це можна здійснити з допомогою досвідченого майстра, так і самостійно, маючи в своєму розпорядженні креслення піролізного котла. По ньому визначається кількість і номенклатура матеріалів з таким розрахунком, щоб не купувати їх з великим запасом. Додатково заощадити кошти і дозволяє самостійне виконання робіт, єдина умова – вміння здійснювати заготівельні та зварювальні роботи на високому рівні. Водяна сорочка установки являє собою посудина, що працює під тиском, тому якість зварних швів має бути високим.

    Перед тим як зробити піролізний котел, потрібно з’ясувати, якими мають бути його параметри. Головний з них – теплова потужність, необхідна для опалення будинку. Її можна вирахувати по загальній площі всіх поверхів будівлі за принципом: на кожні 10 м2 потрібно 1 кВт теплової енергії. Отримане значення множиться на коефіцієнт запасу, згідно нормативної документації він становить 1.2. У реальному житті краще приймати коефіцієнт не менше 1.5, оскільки дрова різних порід має різну теплоту згоряння.

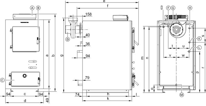
    Піролізні установки працюють за одним принципом: гази, що виділяються з деревини під час горіння в топці, допалюються у вторинній камері. А ось компонування камер і розташування інших елементів конструкції може бути різним, приклади конструктивних схем можна побачити на малюнку.

    Саморобний піролізний котел своїми руками: конструкція і розрахунок

    Схема піролізного котла

    Конструктивні особливості

    Найчастіше конструкція піролізного котла, зробленого своїми руками, передбачає пристрій верхній топки, під якою знаходиться вторинна камера. Така компоновка найбільш проста у виготовленні і добре зарекомендувала себе на практиці. Топка і камера спалювання газів облицьовані зсередини вогнетривкою цеглою. Повітря вентилятором подається примусово – нагнітачем через спеціальні отвори між камерами виконаний щілиноподібний отвір, званий робочої форсункою. Габаритні розміри отвору визначаються потужністю установки.

    Саморобний піролізний котел своїми руками: конструкція і розрахунок

    Факел полум’я з форсунки нагріває днище камери, під яким знаходиться водяна сорочка. Нагріта вода піднімається і омиває димогарні труби теплообмінника, за якими йдуть продукти згоряння. Таким чином, схема піролізного котла даної конструкції передбачає подвійний підігрів теплоносія.

    Для розпалювання дров у задній стінці топки встановлюється клапан прямої тяги, що відкривається вручну за допомогою рукоятки, винесеною за межі корпуса. Після того як паливо розгорілося, заслінку клапана закривають, вмикають нагнітач, і установка переходить в робочий режим. Щоб вся система працювала стабільно та ефективно, спочатку потрібно зробити розрахунок піролізного котла. Виходити треба з необхідністю теплової потужності агрегату.

    Читайте також корисну статтю про принцип роботи піролізного котла.

    Виконання обчислень

    Першим ділом потрібно підібрати розміри отвору форсунки. Найпростіший спосіб – придбати готовий виріб розраховане під певну потужність, такі є в продажу для установок різних виробників, наприклад, ATMOS. Інший шлях дещо важче, зате набагато дешевше: виготовити отвір необхідного перерізу в шамотном цеглі, який буде покладений на дні топки. Габаритні розміри щелевидной отвору для різних значень потужності представлені в таблиці 1.

    Таблиця 1

    Саморобний піролізний котел тривалого горіння можна виготовляти з довільними розмірами топки, які розраховуються за такою схемою:

    • Теплота згоряння деревини – 2,8 кВт/кг, щільність – 400 кг/м3. Щоб забезпечити потужність 10 кВт, потрібно за 1 годину спалювати 10 / 2,8 = 3,6 кг дров.
    • Враховуючи, що між полінами в топці залишається порожній простір, потрібно прийняти коефіцієнт заповнення 0,5. Тоді корисний об’єм камери на 1 годину роботи становитиме: 3,6 / 400 / 0,5 = 0,018 м3.
    • Прийнявши довжину поліна дорівнює 0,6 м, а висоту первинної камери – 0,5 м, вираховується її корисна ширина на 1 годину роботи: 0,018 / 0,6 / 0,5 = 0,06 м.
    • Щоб завантажувати паливо 1 раз в 10 годин, корисний об’єм повинен бути: 0,018 х 10 = 0,18 м3. Тоді при колишніх значеннях глибини і висоти корисна ширина: 0,18 / 0,6 / 0,5 = 0,6 м. Остаточні габарити – 0,6 м х 0,6 м х 0,5 м.

    Саморобний піролізний котел своїми руками: конструкція і розрахунок

     

    Наступний крок – підбір вентилятора – нагнітача, який встановлюється на саморобні піролізні котли і забезпечує подачу повітря в обидві камери. Пристрої підбираються по продуктивності, яка залежить від потужності установки, ці дані можна взяти з Таблиці 2.

    Таблиця 2

    Димові гази, що виконуються вторинну камеру, мають досить високу температуру. Щоб не викидати це тепло на вулицю даремно, застосовується жаротрубная схема виготовлення піролізного котла. Згідно з нею, димові гази, проходячи через димогарні труби теплообмінника, охолоджуються до температури 150-200 ⁰ С, віддаючи свою теплоту водяній сорочці. Щоб розрахувати корисну площу теплового обміну, потрібно визначити такі вихідні дані:

    • температуру теплоносія в подаючому і зворотному трубопроводах t1 і t2;
    • температуру димових газів на вході в теплообмінник і на виході з нього Т1 і Т2.

    Далі, визначається різниця температур ∆t= t1 — t2 ∆Т = Т1 — Т2. Після цього можна порахувати величину температурного напору τ, ⁰С:

    τ = (∆Т — ∆t) / ln (∆T / ∆t)

    Площа поверхні теплообміну S(м2) знаходять за формулою:

    S = Q / k / τ

    В цій формулі:

    • Q– потрібна потужність котельної установки;
    • k – коефіцієнт передачі теплового потоку, приймається 30 Вт/м2 ⁰С.

    Перевірити результат можна по Таблиці 3, в якій представлені укрупнені значення площі поверхні теплообміну в залежності від потужності агрегату.

    Таблиця 3

    Виготовляючи піролізні котли тривалого горіння своїми руками, майстри найчастіше встановлюють патрубок димоходу «на око», в той час як від правильної роботи димохідної труби залежить ККД самого агрегату. Тому площа перерізу труби, а потім і її діаметр краще визначити за формулою:

    F = L / 3600ϑ

    В цій формулі:

    • ϑ – швидкість димових газів, приймається рівною 0,5 м/с;
    • L – витрата газів, відповідає продуктивності вентилятора, м3/год;
    • F – площа перетину труби димоходу, м2.

    Через формулу площі круга знаходять значення діаметра труби.

    Рекомендації по вибору матеріалів

    Щоб зробити надійний піролізний котел своїми рукамі, потрібно для топки взяти леговану жароміцний сталь товщиною не менше 5 мм, не можна використовувати простий низьковуглецевий метал, він швидко прогорить. Жароміцні марки сталей легированы хромом і молібденом, для їх зварювання краще застосовувати відповідні марки електродів. Щоб корпус топки служив довше, у місцях з найвищою температурою його треба облицювати зсередини вогнетривкою цеглою. Те ж саме робиться і у вторинній камері.

    Саморобний піролізний котел своїми руками: конструкція і розрахунок

    Для водяної сорочки можна брати звичайну вуглецеву сталь марки СТ 20 товщиною не менше 3 мм. Між зовнішньою поверхнею топки і внутрішньою поверхнею водяної сорочки необхідно точково приварювати ребра жорсткості через кожні 15-20 см. Це буде охороняти зовнішню оболонку від руйнування при підвищенні тиску і температури теплоносія в екстремальному режимі роботи агрегату.

    Жаротрубний теплообмінник, яким забезпечується піролізний газогенератор, зварюється з декількох труб, чия площа зовнішньої поверхні повинна відповідати або бути трохи більше розрахункової. Матеріал труби – вуглецева сталь СТ 20, але якщо вдасться знайти жароміцну, то це буде тільки краще. Дверцята обох камер зварюють двошаровими, закладаючи всередину азбест або інший теплоізоляційний матеріал, стійкий до високої температури.

    Якісне складання котла своїми руками краще проводити в заздалегідь підготовленому місці, де відразу можна буде виконати його випробування. Якщо в наявності є компресор, можна перевірити якість зварних з’єднань без заливки водою. Досить створити в сорочці надлишковий тиск і при цьому промазати всі шви мильною піною. В іншому випадку доведеться залити в сорочку теплоносій, розпалити котел і уважно спостерігати за всіма сполуками.

    Для управління продуктивністю вентилятора потрібно придбати комплект автоматики: контролер і датчики. З їх допомогою автоматично регулюється температура теплоносія в сорочці. Виготовляти і регулювати піролізні котли опалення своїми руками не так вже й складно, якщо є відповідні уміння і навички, а економію коштів можна отримати значну.

    Потрібна потужність, кВт25325080100Довжина отвору, мм120140150200200Ширина отвору, мм3030303040Потужність установки, кВт2532508090100Продуктивність нагнітача, м3/год98,5195,9242,2253,2284,8316,5Корисний об’єм топки, м30,220,240,350,420,470,52Потужність котла, кВт25325080100Smin, м24,56,38,514,516,5Smax, м25,27,810,215,216,7

    poradu24.com


    Смотрите также