- 8 (495) 7487600
- 8 (495) 7487600
- 8 (925) 5552040
- 8 (925) 5552040
- Напишите нам
- Обратный звонок
Интернет магазин оборудования насосной, отопительной и водонагревательной техники №1
Твердопаливний котел тривалого горіння з водяним контуром для будинку. Твердопаливний котел тривалого горіння
Споруджуємо твердопаливний котел тривалого горіння
Кілька десятиліть тому твердопаливні котли були найбільш поширеною категорією обладнання, що використовувалися для обслуговування опалювальних систем приватних будинків, котеджів, особняків. Але вони мали один істотний недолік. По мірі згорання в камеру горіння треба було підкладати паливо, тобто дрова. Деревина горіла швидко, витрата палива був досить істотним.
На зміну котлам, які працюють на твердому паливі, прийшли електричні і газові агрегати. Однак і устаткування, що працює на твердому паливі, не втратило своєї актуальності. Сьогодні популярністю користуються модернізовані котли тривалого горіння. Вони дозволяють більш ощадливо витрачати пальне, забезпечуючи при цьому виділення достатньої кількості теплової енергії.

Саморобний твердопаливний котел
Спорудити можна котел твердопаливний тривалого горіння своїми руками. Креслення, заміри, розрахунки допоможуть зробити якісний і продуктивний агрегат для обслуговування системи опалення приватного будинку.
Переваги та особливості котлів
Особливість твердопаливного обладнання тривалого горіння в тому, що він обладнаний місткою камерою згоряння, куди вміщується значна кількість твердого палива. Це забезпечує тривалу роботу агрегату без необхідності постійного завантаження. Такі моделі завантажуються раз в 7-8 годин.
В обладнанні тривалого горіння тверде паливо згоряє повністю. Воно навіть не горить, а повільно тліє, виділяючи при цьому теплову енергію, її цілком вистачає для забезпечення комфортної температури в приміщеннях. Таким чином, істотно знижується витрата палива. Прилади тривалої дії відрізняються рядом переваг порівняно з іншими видами опалювального обладнання.

Умови експлуатації твердопаливного котла
- Паливо доступне, воно коштує дешевше, ніж електрична енергія або газ. Його можна використовувати там, де не прокладені магістралі або мають місце віялові відключення світла.
- Функціонування котла не залежить від сторонніх чинників. Для роботи устаткування не потрібна електроенергія.
- З допомогою твердопаливного котла можна обігріти досить великі приміщення.
- Обладнання не вимагає особливого догляду, воно без проблем монтується і не ламається в процесі експлуатації.
- Прилади безпечні, так як функціонують на екологічно чистому паливі.
- Зробити можна котел твердопаливний тривалого горіння своїми руками.
Зверніть увагу! Прилади тривалої дії досить продуктивні і потужні. Вони призначені для обігріву великих приміщень. Власник може істотно заощадити не тільки на паливі, але і на самому обладнанні, виготовивши його своїми руками.
Принцип роботи твердопаливного котла
Твердопаливні котли тривалого горіння працюють за рахунок спалювання всередині твердого палива. Деревина, торф, пелети згорають відносно повільно, забезпечуючи високий відсоток тепловіддачі. В процесі виготовлення опалювального обладнання слід передбачити, щоб дрова в котлі саме тліли, а не горіли.

Принцип роботи твердопаливного котла
Тверде паливо згоряє з мінімальною кількістю відходів, що свідчить про високий ККД обладнання. Найбільш функціональним елементом твердопаливного обладнання тривалого горіння вважається топка. Саме тут і відбувається спалювання палива з подальшим виділенням теплової енергії, яка йде на нагрівання приміщень.
Пристрій опалювального обладнання
Щоб дізнатися, як зробити твердопаливний котел тривалого горіння, немає нічого особливо складного, важливо просто правильно розібратися з принципом дії, з кресленнями та розрахунками. Корпус агрегату виконується із сталевої або чавунної труби, а товщина її стінок не менше 5 мм, так як метал має властивість прогорати. Висота може змінюватись в залежності від того, приміщення якої площі потрібно опалювати. Твердопаливний котел тривалого горіння складається з трьох основних функціональних частин:
Одним з найбільш важливих елементів устаткування є розподільник повітря. Саме він перешкоджає проникненню кисню в камеру згоряння, і паливо тліє. За зовнішнім виглядом деталь нагадує коло, виготовлений з металу. Діаметр його трохи менше, ніж окружність корпусу котла.
Зона згоряння палива в котлі не повинна бути насичена повітрям, інакше деревина буде собі вільно горіти. Як правило, висота її не перевищує 5 див. Подача повітря в опалювальний прилад здійснюється двома шляхами: безпосередньо з атмосфери, з камери нагріву. У другому випадку забезпечується більш ефективна робота твердопаливного котла опалення. Через регулювання подачі повітря відповідає повітряна заслінка. Необхідними комплектуючими елементами є димовідвідна труба, дверка для видалення золи.
Класифікація агрегатів
Тільки після ознайомлення з принципом роботи, пристроєм, видами можна нарешті почати виготовляти твердопаливні котли тривалого горіння своїми руками. Схема складається в першу чергу. Вона повинна передбачати правильне розміщення всіх деталей, щоб разом вони забезпечували ефективне функціонування опалювального обладнання. Основний критерій, за яким класифікуються опалювальні агрегати, — це спосіб переробки палива всередині котла.
Зверніть увагу! Ще класифікують опалювальне обладнання цього типу за формою виконання і матеріалами, з яких котел виготовлений. За формою котли можуть бути круглими або прямокутними, за матеріалом – металевими або цегляними.
Як зробити своїми руками
Перед тим як приступати до виготовлення опалювального агрегату для обслуговування системи опалення приватного будинку, слід визначитися, який саме твердопаливний котел понад-тривалого горіння своїми руками вам потрібен.

Креслення для формування твердопаливного котла
Вибір виду обладнання здійснюється в залежності від навичок роботи з тим чи іншим матеріалом, від вимог, які виставляються до котла опалення, а також від наявності матеріалів і інструментів, які можуть знадобитися в процесі виконання роботи.
Традиційний котел
Найпростіше устаткування. Його можна без проблем зробити своїми руками, тільки спочатку слід виконати креслення і скласти схему. Для виробництва котла доцільно використовувати листову сталь, сталеву чи чавунну трубу, діаметр якої коливається від 400 до 600 мм.
Дверці для завантаження палива в таких котлах розташовується у верхній частині, а відводить труба збоку. Власник отримує можливість самостійно регулювати потужність опалювального приладу і тривалість його горіння, так як можна змінювати обсяг камери для палива. Креслення котла тривалого горіння, на твердому паливі можна виконати самостійно або довірити роботу професіонала.

Підключення системи опалення твердопаливний котел
Важливо! Основною перевагою даного типу опалювального обладнання є його простота і те, що при виконанні монтажних робіт не потрібні особливі знання і навички. Але слід врахувати й те, що витрата палива тут передбачається більше, ніж у технологічно складних моделях.
Котли-шахти
Обладнання складається з двох камер, в одну завантажується паливо, у другій воно згоряє з подальшим виділенням теплової енергії. У другій камері знаходиться і теплообмінник, зроблений з металу. У цьому відділенні теплова енергія поглинається теплообмінником, а він віддає її теплоносію, відпрацьовані гази виходять у відвідну трубу.
Котел, де паливо горить зверху
Особливістю пристрою таких агрегатів є те, що тут деревина підпалюється вгорі, воно поступово собі тліє, добираючись до дна. Для ефективного функціонування такого обладнання слід подбати про встановлення телескопічної труби, вона повинна здійснювати помірну подачу кисню в зону горіння дров.
Щоб паливо в таких агрегатах згорало більш ефективно, слід облаштувати камеру підігріву, де б попередньо нагрівався повітря.
Сконструювати такий агрегат досить непросто, однак, він відрізняється хорошою продуктивністю і потужністю, здатний забезпечити тепло і комфорт в приватному будинку будь-якої площі. Якщо виготовити прилад за всіма правилами, він буде служити довго і надійно.

Схема обв’язки опалення твердопаливним котлом
Цегляні агрегати
Твердопаливні котли тривалого горіння Україна своїми руками можуть бути зроблені навіть з цегли. Вони відрізняються відмінними експлуатаційними характеристиками, довговічні, зносостійкі, прекрасно зберігають тепло всередині приміщення.
Основною перевагою цегляних котлів є їх відносно невелика вага. Корпус і топка тут виконуються з цегли того ж принципом, що застосовується для виготовлення печей, а теплообмінник виконаний із сталі або чавуну.
Правила експлуатації
При дотриманні правил поводження з твердопаливними приладами тривалої дії опалювальне обладнання буде служити довго і надійно. Якщо в традиційних котлах, де передбачається повноцінне горіння палива з надходженням достатньої кількості повітря можна залишати місце для проникнення кисню, але і приладах тривалого горіння такої необхідності не виникає. Тут топка завантажується настільки, наскільки це можливо.
Зверніть увагу! Деревина не є єдиним видом палива, що може застосовуватися для обслуговування опалювальної системи, яка функціонує на твердопаливних котлах тривалого горіння. Замість дров підходять також пелети, торф, вугілля.
Кількість виділеної теплової енергії залежить від правильності завантаження палива в котел. Виконується це в такій послідовності:

Система функціонування твердопаливного котла
- Для початку потрібно зняти верхню кришку котла опалення.
- Тепер слід вийняти повітряний регулятор.
- Далі в котел завантажується максимальну кількість палива так, щоб воно досягало рівня відвідної труби.
- Щоб паливо швидше розгорілося і ефективніше горіло, слід зверху полити невеликою кількістю такого, що розпалює складу. Це може бути солярка, технічне масло.
- Тепер назад можна встановити повітряний регулятор і максимально відкрити заслінку.
- Далі за допомогою паперу розпалюємо котел, закриваємо кришку.
Немає нічого складного в тому, як самому зробити твердопаливний котел тривалого горіння. Для цього необхідна схема, креслення, підготовка матеріалів та інструментів. В залежності від того, з чого буде виготовлятися опалювальне обладнання, готуються інструменти. Якщо це буде сталевий або чавунний котел, не обійтися без зварювання та болгарки.
Ефективність функціонування опалювального обладнання залежить від того, яка площа теплового контакту. За це відповідає теплообмінник. Сконструювати його своїми руками досить непросто. Як правило, теплообмінники виконуються із сталі або чавуну.

Умови експлуатації твердопаливного котла
При складанні креслення або схеми опалювального обладнання, слід враховувати всі комплектуючі деталі, їх розташування, розміри. Від правильності розрахунку залежить працездатність опалювальної системи. У процесі складання схеми котлів на твердому паливі тривалого горіння слід також подбати про безпеку приладу. Найменша помилка при складанні креслення або виконанні монтажних робіт може обернутися тим, що підвищиться ризик виникнення нещасного випадку, а також значно зменшиться термін служби обладнання.
dovidkam.com
Як вибрати твердопаливний котел тривалого горіння?
Протягом багатьох років тверді види палива (вугілля, дрова і т. п.) поступалися свою ринкову частку рідкого палива і особливо газу. Викликано це було самою технологією спалювання палива, так як занадто велика кількість енергії витрачалося на переривання взаємозв’язків між молекулами. Справа в тому, що ці зв’язки набагато міцніше в твердих видах палива, ніж в газах або рідинах. Проте технології не стоять на місці: підвищити ефективність спалювання дозволило новий винахід — твердопаливний котел тривалого горіння, робота якого грунтується на піролізі. Про те, як вибрати твердопаливний котел тривалого горіння піде мова нижче.

Принцип здійснення піролізу
Ще в середньовіччі люди усвідомили, що спалення дров не є оптимальним варіантом для отримання з деревини, накопиченої там енергії. Значно кращі результати давало опалення деревним вугіллям, що базується на піролізному процесі. Відкриття прийшло досвідченим шляхом, і лише пізніше дослідники змогли пояснити його суть наукообразно.

Принцип здійснення піролізу
В ході піролізу відбувається розпад органіки під впливом високих температур. Однак, щоб процес не був звичайним спалюванням, необхідно до сжигаемому матеріалу скоротити надходження кисню. У давнину для цього використовувалися вугільні ями. В ті часи такий спосіб мав недолік — втрата енергії при первинному горінні, коли при виробництві деревного вугілля енергія витрачалася даремно. Використовувати весь енергетичний потенціал піролізу в змозі лише сучасні газові генератори або, іншими словами, піролізні твердопаливні котли.
Принцип роботи і пристрій котла
У котлі є дві камери: первинна і вторинна. В первинній камері відбувається спалювання палива, як у звичайній пічці. Через спеціальне вікно в камеру кладеться паливо, а колосник забезпечує надходження повітря всередину.

Схема пристрою твердопаливного котла
Далі потрібно вивести котел на так званий «режим». Для цього паливо повинно повністю розгорітися. Після виходу на режим проявляються відмінності піролізних котлів від стандартних печей. Як тільки досягається вихід на режим, надходження повітря скорочується, з-за чого горіння майже зупиняється, за невеликим винятком. При цьому навіть слабкого горіння достатньо для термічного розпаду недогоревшей частини палива і освіти піролізного газу.
Далі газ в примусовому порядку направляється у вторинну камеру допалювання, куди подається так званий вторинний повітря. З’єднуючись з киснем в умовах підвищеної температури, газ тут же займається і віддає великі потоки тепла, розігріваючи теплової носій.
Переваги
Газогенератори мають важливі плюс у порівнянні зі стандартними котлами горіння.
Останнє забезпечує не тільки більшу екологічну безпеку газових генераторів, але і дає можливість застосовувати не тільки звичайне паливо для твердопаливних котлів, але і всілякі відходи, наприклад, швейні або шкіряні.
Оптимізація споживання палива дозволяє продовжити термін роботи обладнання на одній заправці пальним — від 12 годин і більше (при тому, що звичайний котел працює до 5 годин).
Зверніть увагу! Нерівномірний процес горіння раніше був причиною складнощів в управлінні роботою твердопаливних пристроїв. Нині ця проблема вирішена за допомогою піролізного процесу, оскільки в котлах, що працюють за таким принципом, головне відбувається у вторинній камері, де спалюється піролізний газ.
Недоліки
Газогенератори мають не лише переваги, але і деякі недоліки.
Важливо! Ще раз про вологість палива. Ні в якому разі не можна застосовувати паливо, якщо його вологість вище 30%. Як говорилося вище, це призведе до низької ефективності котельного обладнання, а також знизить термін його служби. Справа в тому, що сирий матеріал змушує апарат починати процес їх сушки, що направляє потоки потужності і енергії не в те русло.
Застосування піролізного обладнання
Оптимальне місце розташування котла там, де удосталь є дрова чи відходи деревообробки. Однак не всі хочуть спеціально створювати приміщення для дров або займатися сушінням отсыревшего сировини. В цьому випадку можна вибрати пелетний газогенератор.
Пелетний котел — це пристрій, що працює на спеціальних гранулах-пеллетах. Гранули виробляються з відходів столярного або маслоробного виробництв, а також з торфу або сухого гною.

Дерев’яні палети (гранули)
Переваги гранул-пелет:
- пелети простіше зберігати, в порівнянні з дровами;
- гранули не потрібно сушити або колоти;
- для піролізного процесу пелет потрібна відносно менша за розміром камера;
- пелетні гранули можна подавати в топку з допомогою автоматики;
- пелетні котли не займають багато місця в приміщенні, а процес їх запуску простий.
Поєднання газового генератора з бойлером непрямого нагріву дає можливість задіяти котел не тільки для опалювальних цілей, але і для нагрівання води.
Вибір піролізного котла
Твердопаливний котел з чавуну — хіт останніх років. Раніше таке обладнання практичні завжди вироблялося зі сталі.
Однак чавун має ряд важливих переваг:
- надійність і міцність;
- підвищена віддача тіла;
- стійкість до агресивних середовищ;
- оптимальна вартість матеріалу.
Рада! Російські генератори в цілому не гірше імпортних, але все ж практика застосування котлів європейського виробництва свідчить на їхню користь.
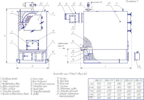
Котли «Дон» («Завод Конорд», Росія)
Модельний ряд цього виробника популярний серед споживачів.

Твердопаливний котел «Дон»
До його переваг відносяться:
- енергонезалежність — іншими словами, не знадобиться використання електричної енергії.
- високий ККД.
- безпека — це якість забезпечується шаром теплоізоляції, в результаті чого зовнішня частина обладнання не перегрівається.
- топка виробляється з високоякісної сталі.
- тривала робота після завантаження палива — до 12 годин.
Котли Viadrus (Чехія)

Твердопаливний котел Viadrus»
Дані котли відрізняються високою європейською якістю, марка цього виробника з Чехії широко відома на російському ринку. Чеські котли відомі своєю універсальністю, так як можуть застосовуватися як в побутових приміщеннях, так і виробничих. Обладнання відмінно підходить для холодних російських зим. Апарати виготовляються з чавуну, що відразу дає їм ряд переваг перед сталевими конкурентами.
Котли «Вогнище» (Росія)
Піролізні котли на твердому паливі «Вогнище» виготовляються з легованої 5-міліметрової сталі. Призначені для роботи на вугіллі або дровах. Обладнання вважається досить якісним і володіє всіма необхідними робочими характеристиками.

Твердопаливний котел «Вогнище»
Котли оснащені автоматикою дистанційного контролю за насосом і вентилятором, що дозволяє спростити управління пристроєм і зробити його доступним для кожного споживача.
Котли Stropuva» (Литва)
Дане обладнання відмінно зарекомендувало себе на російському ринку. Конструкція його не відрізняється складністю, але простота має позитивну сторону, а саме — надійність.

Твердопаливний котел Stropuva»
Твердотільні котли Stropuva» включають в себе декілька циліндрів. Причому кожен циліндр знаходиться всередині іншого, за принципом матрьошки. У проміжках між циліндра є рідина, поступово розігрівається до потрібної кондиції. Фактично, внутрішній циліндр виступає в якості топкової камери, в яку нагнітається повітря. Котел повністю виготовлений зі спеціальної жаростійкою сталі, якій не страшні корозійні процеси завдяки цинкового шару покриття.
Після заправки і розпалювання, паливо починає повільно вигоряти, при цьому процес йде від низу до верху. В ході спалювання розподільник повітря опускається вниз. Дана особливість є ключовою характеристикою котла «Stropuva», дозволяючи йому домагатися найвищих показників економії палива, а також значного коефіцієнта корисної дії.
У процесі використання газогенератора, як і будь-якого обладнання, важливо не порушувати правила його експлуатаційного режиму. Якщо генератор застосовується згідно з рекомендаціями виробника, він прослужить багато років і заощадить власникові чималі кошти.
dovidkam.com
Як вибрати твердопаливний котел тривалого горіння, для опалення
Щоб придбати відповідний опалювальний агрегат для приватного будинку, необхідно тверезо оцінити характеристики пропонованих варіантів і врахувати всі особливості житла, яке потрібно обігріти. Щоб справитися з цим завданням, вам доведеться зробити точні математичні розрахунки і гарненько продумати момент поставки пального. Відомості, які ви отримаєте з цієї статті, допоможуть вам зрозуміти, як вибрати твердопаливний котел тривалого горіння. Використовуйте запропонований матеріал, щоб уникнути поширених помилок і прийняти вірне рішення.
Різновиди та принципи роботи твердопаливних котлів тривалого горіння
Якщо вам належить вибрати котел на твердому паливі тривалого горіння, насамперед ознайомтеся з класифікацією цих агрегатів. Маючи загальне уявлення про існуючі різновиди, ви зможете зорієнтуватися в широкому асортименті і відразу виключити невідповідні варіанти. Твердопаливні опалювальні котли відрізняються за кількома ознаками, які будуть описані далі в статті.
За способом спалювання палива
Котли тривалого горіння, на твердому паливі діляться на дві категорії:
- Традиційні. В котлах цього типу реалізована найпростіша схема спалювання палива. За принципом роботи вони нагадують звичайну піч зі спеціальним віконцем для подачі пального. Основний елемент традиційного котла – теплообмінник, що забезпечує передачу температури безпосередньо до теплоносія. Такі котли відрізняються небувалої надійністю і довговічністю, однак їх ККД залишає бажати кращого.

- Піролізні (газогенераторні). Цей тип котлів відрізняється підвищеним рівнем ККД. Такі агрегати виробляють теплову енергію, спалюючи паливо особливим шляхом. Спершу агрегат підсушує пальне. Далі слід дегазація, в ході якої близько 85% речовин при горінні перетворюється на горючий газ. Решта 15% залишаються у формі вугілля. У внутрішній порожнині камери згорання температура підвищується до 600°, за рахунок чого горючий газ окислюється і займається. Цей процес залишає гарячий шар вугілля. Маси низькотемпературних газів насичуються вуглецем, забезпечуючи підвищення температури до 1000°. В таких умовах вугілля розкладається, виділяючи велику кількість теплової енергії. Потік повітря, подводимый до верхньої стінки камери згоряння, направляє полум’я вертикально вниз. За рахунок цього процес горіння стає керованим. Безперервна подача повітря забезпечує постійне окислення горючих газів.
За матеріалом виготовлення
В асортименті побутових твердопаливних котлів зустрічаються агрегати, виготовлені з різних матеріалів. Виробники використовують два види металів:
- Чавун. Котел, виконаний з чавуну і являє собою секційну конструкцію, кожен відділ якої може бути відділений від інших. Можливість розбирання робить агрегат більш зручним при транспортуванні і монтажі. При виникненні необхідності проведення ремонтних робіт ця особливість істотно полегшує завдання майстру. У ході експлуатації чавунного котла внутрішні стінки камери згоряння піддаються хімічної корозії. На них з’являється суха іржа (плівка, що складається з оксиду заліза). Як правило, вона не прогресує, тому ККД агрегату залишається на стабільно високому рівні. Часто чистити його від нагару не доведеться. Єдиним істотним недоліком чавунного твердопаливного котла є сприйнятливість до перепадів температури. Тепловий удар може призвести до пошкодження стінок камери. Таких випадків варто уникати.

- Сталь. Котел виготовлений з цього металу, являє собою моноблочний агрегат, який збирається в заводських умовах. Розібрати його для зручності транспортування не вдасться. Сталеві твердопаливні котли тривалого горіння не бояться теплових ударів, тому в них більш широко використовують автоматичні електронні пристрої зміни режимів. Тим не менш, систематичні перепади температур призводять до утворення втомлених зон на стінках камери згоряння, що з часом призводить до прогорання металу. Якщо це станеться, відремонтувати агрегат не вдасться.
За типом використовуваного палива
Опалювальні твердопаливні котли тривалого горіння поділяють на чотири категорії за типом спалюваного палива:
- На дровах. Найпоширеніша різновид твердопаливного котла. Її популярність пояснюється простотою конструкції і невибагливістю до пальному. Твердопаливний котел тривалого горіння, на дровах може працювати практично при будь-яких умовах, але у нього є один суттєвий недолік – відсутність автоматики. По мірі згорання палива користувачеві доводиться підкладати в топку дрова.

- На вугіллі. Такий котел підійде для будинку великої площі куди більше, ніж дров’яної. Вугілля відрізняється низькою вартістю і зручністю транспортування.
- На пелетах. В якості палива для котлів цієї різновиди використовуються деревні паливні гранули, що представляють собою спресовані відходи деревообробної промисловості. Їх називають пелетами. Відносно невелика камера згорання пелетного котла спалює брикети, виробляючи велику кількість тепла.
- На тирсі. Окрема різновид твердопаливних котлів, в яких спалюються тирсу, суха трава, листя і інші відходи. Такі агрегати забезпечують якісний обігрів житла, а також вирішують проблему утилізації сміття рослинного походження.
Двоконтурні
Котли двоконтурні котли тривалого горіння відрізняються тим, що не тільки опалюють житло, але ще й підігрівають воду для використання в побутових цілях. Встановивши такий агрегат, ви обогреете будинок і заодно вирішити проблему забезпечення теплої води для ванної кімнати та кухні. Твердопаливний котел тривалого горіння з водяним контуром коштує дорожче, проте з ним відпадає потреба у встановленні газової колонки або бойлери.
Критерії вибору котлів на твердому паливі тривалого горіння
Із загальною класифікацією котлів на твердому пальному ми вже ознайомилися. Настав час розглянути критерії, за якими власники приватних будинків визначають оптимально відповідні варіанти агрегатів для монтажу систем обігріву. Ознайомившись з наступними розділами, ви дізнаєтеся, як правильно вибрати твердопаливний котел тривалого горіння для свого житла.
Вид пального
Першим ділом ви повинні визначитися з тим, яке паливо буде використовуватися для опалення. Виходите з того, який вид палива зручніше купувати і завозити. Якщо у вас є заготовлена деревина, буде розумно придбати котел на дровах. Власникам котеджів, де немає дерев, можна порекомендувати опалення пелетами. Вугільні котли підійдуть тим, хто має можливість на вигідних умовах замовляти якісне паливо. Системи опалення на тирсі, як правило, використовуються для обігріву об’єктів, що займаються обробкою деревини.
Потужність котла
Щоб визначити необхідну потужність опалювальної системи, треба зробити прості математичні обчислення. Розрахуйте загальний обсяг приміщень, які збираєтеся опалювати. Отримана цифра допоможе вам знайти в широкому асортименті твердопаливних котлів тривалого згоряння модель з відповідними параметрами. Майте на увазі: завжди потрібно забезпечувати запас потужності, щоб при сильному зимовому морозі в будинку не було холодно.
Вага пристрою
При виборі твердопаливного котла тривалого згоряння для обігріву приватного будинку параметр маси приймається до уваги, лише якщо власник має намір закріпити куплений агрегат на стіні. Згідно державним стандартам, встановленим газовою службою Росії, такий спосіб монтажу допускається для опалювальних котлів об’ємом менше 100 літрів.
Обсяг завантажувальної камери

Цей параметр характеризує співвідношення обсягу закладається палива потужністю опалювального агрегату. Чим більше пального вміщується в завантажувальній камері, тим рідше вам доведеться поповнювати запас дров/вугілля/пелет. Для сталевих котлів відношення цих величин становить 1,6-2,6 л/кВт. Чавунні опалювальні агрегати витрачають паливо в менших кількостях – 1,1-1,4 л/кВт.
Загальний обсяг завантажувальної камери допоможе вам приблизно оцінити можливості котла. Заповнити її на 100% вам не вдасться в будь-якому випадку. Куди більше значення має корисний об’єм завантажувальної камери. Ця величина відображає фактичне кількість палива, яке ви зможете завантажити в камеру згоряння. Щоб визначити її, треба знати принцип спалювання пального обраного котла і спосіб завантаження палива (верхній або передній).
Коефіцієнт корисної дії котла
Один з головних параметрів для будь-якого твердопаливного опалювального агрегату тривалого згоряння. Цифра, що виражає ККД котла, характеризує ту частину виробленої теплової енергії, яка реально витрачається на опалення житла. Вибираючи агрегат з високим коефіцієнтом корисної дії, ви зможете знизити вимоги до потужності. Низький ККД передбачає зайвий витрата тепла, тому вам доведеться додавати більше пального, щоб підтримувати прийнятну температуру в будинку.
Огляд кращих виробників твердопаливних котлів опалення
Сучасний ринок опалювальних систем для приватних будинків повниться пропозиціями від безлічі брендів, проте далеко не всі ці агрегати можуть похвалитися надійністю і довговічністю. Про те, як вибрати домашній твердопаливний котел тривалого горіння ви дізналися з попередніх розділів статті. Настав час звузити область пошуку до кола тих виробників, які по-справжньому заслуговують поваги:

Де купити і скільки коштують
Придбання твердопаливного котла тривалого згоряння для обігріву приватного будинку – завдання серйозне. Підходити до неї потрібно з максимальною відповідальністю. Такий агрегат коштує чималих грошей, тому насамперед необхідно оцінювати надійність сторони, що продає. У таблиці, наведеній нижче, ви знайдете контакти і деякі комерційні пропозиції перевірених московських постачальників опалювального обладнання.
Назва організації
Адреса, Веб-сайт
Найменування пропонованої моделі
Тип
Ціна, руб
«Технодім»
Заводське шосе, будинок №9А; Веб-сайт: teh-dom
Stropuva S8
Двуконтурний піролізний
60 000
Viardus Woodpell 7
Автоматичний пелетний
268 000
«Термо-Світ»
вул. Авіаконструктора Миля, будинок №19; Веб-сайт: termo-mir
Дон КС-Т-16
Дров’яної
198 00
Дон КС-ГВ-50Н
Дров’яної
24 000
«ГарантКомфорт»
Бізнес-Парк Румянцево, Київське шосе, будинок №1, корпус А, офіс №905; Веб-сайт: garantcomfort
Viardus U22D-5
Вугільно-дров’яної
85 034
Viardus U22D-10
Вугільно-дров’яної
125 235
«ТеплоДар»
Веб-сайт: teplodar
Теплодар Куппер ОК15
Твердопаливний універсальний
21 740
Теплодар Куппер ОК20
Твердопаливний універсальний
24 710
Теплодар Куппер ОК20
Твердопаливний універсальний
31 730
Відео: саморобний котел на твердому паливі своїми руками
Для тих, хто позбавлений можливості придбати дорогий опалювальний котел, підійде варіант складання такого агрегату в домашніх умовах. Наведений нижче відеоролик докладно пояснить, як це зробити. Прислухайтеся до порад фахівців, і зможете самостійно створити альтернативний варіант твердопаливного котла тривалого згоряння.
Відгуки покупців
Олег, 38 років: Три роки тому купив в інтернеті твердопаливний котел Wichlacz (Польща). Працює чудово. За весь час чистити камеру довелося тільки два рази. Взимку в будинку завжди тепло. Споживання вугілля мінімальне. Однієї закладки вистачає як мінімум на два дні. Автоматика функціонує безвідмовно. Раджу всім, хто живе в північних поясах.
Федір, 44 роки: У 2010 році викинув старий котел і купив новенький «Віадрус» на пелетах. Згоден, задоволення не з дешевих, але, зате проблема опалення зважилася раз, і назавжди. Автоматична подача пелет працює безвідмовно. Споживання палива мінімальне. Будинок опалюється цілу добу, але з фінансового боку це практично не відчувається. За час служби (майже 6 років) не виникло жодних претензій.
Євген, 34 роки: Як тільки купили будинок, я відразу поміняв котел. Встановив твердопаливний універсальний «Теплодар» Куппер ОК20. Для нашої житлоплощі потужності цього агрегату вистачає з головою. Сам котел коштує не дорого, та й паливо для нього не сильно б’є по кишені. При цьому ніхто з членів сім’ї не скаржиться на поганий обігрів. Топимо всім, що трапляється під руку. Дуже зручно: і сміття утилізуємо, і будинок опалюємо.
vidpoviday.com
Як вибрати двоконтурний котел твердопаливний тривалого горіння
Іноді від опалювального обладнання потрібно не лише тепло, але і гаряча вода. І якщо в будинку немає газу, природного або скрапленого, слід пристосувати для цих цілей двоконтурний котел. Вкрай бажано, щоб це була модель тривалого горіння, яка не вимагає занадто частого підкладання пального. У продажу існує величезна кількість таких котлів, тому вам слід навчитися їх вибирати. Для цього ми й підготували цей огляд.
Принцип роботи твердопаливного котла двоконтурного
Двоконтурні котли є універсальними приладами. Вони можуть обігрівати будинки та забезпечувати подачу підготовленої гарячої води, нагрітої до певної температури. Їх пристрій досить складне, тут багато додаткових вузлів і модулів, адже готова конструкція повинна вийти як можна більш компактною і функціональною. Саме цим і відрізняються двоконтурні котли газові, так і твердопаливні.
Найскладніше влаштоване газове обладнання, в якому, крім пальника та теплообмінника, присутні газові вузли, системи безпеки, обв’язка, різні датчики та вентилятори. Все це робить техніку складним в обслуговуванні і ремонті. Що стосується двоконтурних твердопаливних котлів, то вони влаштовані набагато простіше. В них ми знайдемо:

Пристрій твердопаливного котла з двома контурами опалення та ГВП.
- Пальник – класичну або піролізні;
- Здвоєний теплообмінник;
- Додаткові патрубки для подачі і забору води.
Пальник, що працює на дровах або деревному газі, виробляє тепло, яке нагріває теплоносій, циркулює по теплообміннику. У цьому теплообміннику прокладені трубки, що відповідають за підігрів води, що надходить з водопроводу. Так як прямий контакт з розпеченим металом тут виключений, така схема дозволяє позбутися від накипу – температура для її утворення тут недостатня.
Деякі котли влаштовані по-іншому – полум’я проходить посередині циліндричного теплообмінника, який нагріває спочатку контур опалення. Контур гарячого водопостачання в таких агрегатах розташовується поверх опалювального контуру. Такий підхід забезпечує відсутність перегріву води в системі підготовки ГВП.
Таким чином, ніяких триходових клапанів та інших складних вузлів тут немає, що вже є певним плюсом. Варто відкрити кран, як з нього відразу ж починає текти гаряча вода. Причому надто гаряча, так як відрегулювати температуру в контурі ГВП в твердопаливному котлі двоконтурному вельми проблематично, особливо, якщо в ньому відсутня система управління горінням.
Розраховувати на більш-менш стабільну температуру води в контурі гарячого водопостачання можна хіба що в пелетних моделях. Але краще всього з цим справляються газові і рідинні моделі.
Котли двоконтурні котли тривалого горіння оснащуються місткими камерами згоряння, які вміщується велика кількість твердого палива. Окремі моделі можуть працювати до 12 годин від однієї закладки. Рекордсменами є пелетні твердопаливні котли, що працюють на спресованих деревних гранулах – вони можуть наділятися вкрай місткими бункерами, що забезпечують безперервне горіння протягом 7-10 днів.
Як вибрати твердопаливний котел
Якщо ви збираєтеся придбати двоконтурний котел, вам обов’язково потрібно буде подальша інформація. Без неї зробити правильний вибір не вийде. Що стосується покупки, то її можна здійснити в магазинах теплотехніки або в спеціалізованих магазинах – в останньому випадку шанси купити хороший двоконтурний котел з відповідними характеристиками значно зростають.
Види палива

Вибираючи модель за типом палива, подумайте, як ви будете зберігати це паливо. Адже кожен окремий вид вимагає певні умови для зберігання.
Двоконтурні твердопаливні котли для опалення приватного будинку можуть працювати на різних видах палива. Найпопулярніший вид пального – це звичайні дрова. У південних регіонах 13-14 кубометрів дров з дуба, бука і граба коштують приблизно 14-17 тис. рублів, але можна знайти і дешевше. Якщо є можливість, дрова можна купити задешево у місцевого лісничого – цим часто користуються жителі невеликих селищ, станиць і сіл.
Дрова володіють непоганим тепловиділенням, а якщо вони здобуті в найближчому лісі, то вони будуть безкоштовними – головне, примудритися зробити нормальний запас на всю зиму і виділити місце під їх зберігання. І це стає головною проблемою, адже деревина досить об’ємна. А її ще треба просушити, щоб поліпшити горіння. Наприклад, піролізні твердопаливні котли двоконтурні потребують пальному з рівнем вологості не більше 20-25%.
Пелети для пелетних двоконтурних котлів є досить цікавим і дешевим видом палива. Одну тонну гранул можна придбати приблизно за 7000 рублів. Їх легко зберігати в бункерах або в найближчому розі. Їх переваги:
- Зручність закладки – сипкі пелети можна засипати в камеру або в бункер прямо з мішка або лопаткою;
- Гарне тепловиділення – 5 кВт на 1 кг гранул;
- Низька освіта золи – справедливо для спеціальних низкозольных пелет.
Таким чином, пелети можуть з легкістю замінити дрова в твердопаливних опалювальних котлах.
Кам’яне і буре кут можна використовувати практично в будь-яких твердопаливних котлах. Але краще все-таки задіяти саме кам’яне вугілля (чорного кольору), так як він горить довго і з великим виділенням тепла – буре вугілля вимогливий до умов зберігання і занадто швидко горить.
По зручності використання перемагають пелети – в них приховано велику кількість теплової енергії, їх легко зберігати і дуже зручно засипати.
Матеріал теплообмінника

Вибирайте агрегат з чавунним теплообмінником, він прослужить вам набагато довше.
Відразу скажемо, що перевагу слід віддати твердопаливним двоконтурним котлів з чавунними теплообмінниками. Чавун є ідеальним матеріалом для подібних цілей – він легко витримує температурні перевантаження, володіє стійкістю до корозії, характеризується тривалим терміном служби. А ще він швидко нагрівається і повільно остигає, продовжуючи віддавати накопичене тепло в опалювальну систему навіть у відсутність полум’я.
До серйозних недоліків чавуну слід віднести його нестабільність. Він не витримує ударів, тому при монтажі устаткування необхідно дотримуватися обережності. Крихкість цього сплаву зростає по мірі нагріву.
Сталеві теплообмінники хороші тим, що вони легко витримують гідроудари, а двоконтурні твердопаливні котли, побудовані на їх основі, відрізняються дешевизною. З недоліків – схильність до утворення корозії і накипу. Зате такі котли легше монтувати, так як вони дуже легкі – чавун є досить важким сплавом.
Принцип горіння
Двоконтурні твердопаливні котли тривалого горіння поділяються на три категорії:
- Твердопаливні з автоматичною подачею пального;
- Класичні, з великою завантажувальної камери;
- Піролізні, зі спалюванням деревного (піролізного) газу.

Якщо у вас немає часу часто підкидати паливо, придивіться до пелетні котли з великим бункером.
Пелетні моделі можуть горіти дуже довго – окремі моделі наділяються гігантськими бункерами, вміщають в себе до декількох десятків, а то і сотень кілограм гранульованого пального. Подача гранул в топку відбувається автоматично. Окремі агрегати і зовсім вміють регулювати горіння і навіть оснащуються системами автоматичного розпалу.
Класичні твердопаливні котли спалюють дрова і вугілля традиційним способом. Періодичність закладки становить 1 раз в 3-5 годин. В продажу присутні модифікації тривалого горіння, в тому числі і двоконтурні, з об’ємними камерами згоряння. У них закладається велика кількість палива, яке може горіти до 8-12 годин (тривалість горіння у деяких моделей становить до 24 годин).
Піролізні агрегати влаштовані за принципом газогенератора. Вони спалюють дрова в первинній камері, з невеликою кількістю кисню. Утворений при цьому деревний газ відправляється в камеру допалювання, де згоряє з утворенням великої кількості тепла. Частина теплової енергії відправляється в першу камеру, сприяючи більш інтенсивної генерації газу. Такі котли можуть горіти від однієї закладки дуже довго.
Переваги та недоліки таких агрегатів
Ціна на двоконтурний котел тривалого горіння може виявитися дуже великий. Особливо якщо це буде піролізна або пелетні модель. Мінімальні розцінки стартують з позначки в 17 тис. рублів за класичну модель потужністю 10 кВт. За агрегат потужністю 20 кВт піролізного типу, який вміє працювати на будь-яких видах твердого палива, доведеться віддати від 55 тис. рублів. Таким чином, вартість складається з потужності і функціоналу.

Як бачите в пристрої класичного твердотопливника немає ні чого складного, він і коштує дешевше піролізних або пелетних моделей.
Далі ми розглянемо основні достоїнства двоконтурних твердопаливних котлів тривалого горіння:
- Мінімальна кількість підходів для закладки пального – в деякі моделі його потрібно завантажувати раз в 7-10 днів;
- Можливість обігріву будинків без електрифікації та газифікації – для цього були створені незалежні моделі;
- Робота на недорогому твердому паливі – забезпечує зниження витрат на роботу опалювальної системи;
- Економічність в порівнянні з електричним опалювальним обладнанням – витрати нижче в 3-4 рази.
Присутні певні недоліки:
- Будь-які котли двоконтурні котли вимагають регулярного користувальницького обслуговування – воно зводиться до прибирання золи і нагару на внутрішніх вузлах;
- Для зберігання палива потрібно занадто багато місця – з цим недоліком не посперечаєшся;
- Високі вимоги до якості пального – справедливо для пелетних і піролізних апаратів.
З деякими недоліками можна миритися, але низька якість палива змушує шукати постачальників хороших дров або пелет. Ми не рекомендуємо вам використовувати низькоякісне пальне, так як його застосування призводить до появи проблем з опаленням.
poradu24.com
Твердопаливний котел тривалого горіння з водяним контуром для будинку
Твердопаливні котли з водяним контуром – для будинку, котеджу або дачі це, мабуть, найкращий варіант опалювального приладу. Адже такі котли «виробляють не лише тепло, але і гарячу воду, споживаючи найпоширеніше паливо – деревину, торф або вугілля.

Твердопаливний котел з водяним контуром
Як влаштований водогрійний контур котла?
Класичний (одноконтурний котел, нагріває теплоносій тільки для системи опалення складається з наступних конструктивних елементів:
- Топки – камери згоряння дров, вугілля, пеллет або торфу.
- Зольника – бункера для збору твердих відходів процесу горіння.
- Димаря – повітроводу для відводу газоподібних продуктів горіння.
- Сорочки – заповненого водою теплообмінника, вбудованого в топку.
Теплоносій подається в «сорочку», акумулює енергію згорілого палива та переноситься до радіаторів, обігрівати квартиру.
Водогрійний (двоконтурний котел крім вищезазначених елементів конструкції містить у собі» ще один теплообмінник – змійовик або накопичувач системи гарячого водопостачання. Другий теплообмінник підключають до холодної гілки водопроводу, отримуючи «на виході» порцію гарячої води.
При цьому практикується дві варіанта розміщення і підключення опалювального контуру:
- Схема проточного нагріву, коли в основну сорочку монтується змійовик водогрійного контуру, що живиться енергією теплоносія системи опалення. Холодна вода рухається по змійовику і нагрівається до прийнятної температури – 40-45 градусів Цельсія. Основний недолік такої схеми – мала продуктивність. У цьому випадку контур гарячого водопостачання нагріває не більше 6-8 літрів рідини в хвилину.
- Схема накопичувального нагріву, коли в основну сорочку або димохідний канал вбудовується бойлер – бак з водою, що нагрівається тим же теплоносієм системи опалення або гарячим повітрям. Холодна вода з водопроводу підмішується до міститься в бойлері рідини по мірі витрати гарячої води. Причому температура води в бойлері може піднятися навіть до 90-95 градусів Цельсія. Тому в даному випадку контур гарячого водопостачання здатна «видати» досить об’ємну порцію води, що перевищує обсяг бака в 2-3 рази. Однак на постійний розігрів бойлера доведеться витратити частину теплової потужності котла, що призведе до перевитрати палива.

Тому при виборі моделі котла з контуром ГВП покупцеві доведеться зіставити власні потреби з конструкційними особливостями «генератора» тепла і гарячої води.
Вибираємо котел з контуром гарячого водопостачання – поради покупцеві
- Звертайте увагу на теплову потужність – ефективний водогрійний котел могутніше одноконтурного варіанти нагрівального приладу на 20-25 відсотків. Адже частина енергії палива, що згорає піде на обслуговування водяного контуру. Тобто, якщо вас потроював 12-кіловатний одноконтурний котел, то для обслуговування систем опалення та гарячого водопостачання вам доведеться придбати агрегат потужністю 15 кВт.
- Зверніть увагу на продуктивність водогрійного контуру. Якщо вам не досить 2-2,5 літри у хвилину – подумайте про придбання котла з бойлером. Якщо у вас велика сім’я – відразу купуйте котел з бойлером або подумайте про встановлення теплового акумулятора.
- Подумайте про простоті обслуговування – періодичність чищення зольника і завантаженні палива. Не хочете проблем з тим і іншим – купуйте твердопаливний котел тривалого горіння з водяним контуром або пелетний теплогенерирующий агрегат з об’ємним бункером. Такі котли потрібно чистити раз на декаду (три рази в місяць). А тривалість горіння на одному завантаженні палива в цьому випадку доходить до 3-5 днів.
- Зверніть увагу на матеріал теплообмінника і топкової камери. При цьому кращим варіантом матеріалу для ГВП теплообмінника є мідь або нержавіюча сталь. А ось топкову камеру, а також основний теплообмінник краще зробити з чавуну. Оскільки чавунний твердопаливний котел з водяним контуром прослужить вдвічі довше сталевого аналога — як мінімум 30 років.
При цьому яку б модель ви не вибрали, готуйтеся «викласти» за неї від 60 тисяч рублів і більше. Водогрійні котли – це недешеве задоволення. Втім, альтернативне рішення – одноконтурний котел + тепловий акумулятор з функцією непрямого нагрівання водопровідної води – коштує ще дорожче.
Популярні моделі котлів з водогрійним контуром
БУРЖУЙ-ДО МОДЕРН-12

Випускається як в одноконтурному, так і в двоконтурних варіанті. В останньому випадку теплообмінник ГВП – гофрована труба з нержавіючої сталі – вводиться у водяну сорочку основного теплообмінника.
При цьому ємність контуру ГВП дорівнює лише 2 літрів, що не заважає котла «генерувати» до 8 літрів гарячої води за хвилину.
Інші характеристики агрегату:
- Теплова потужність – 12 кВт, тому в «водогрійному» виконанні такий котел «потягне» систему опалення будинку площею до 100 квадратних метрів.
- ККД котла – від 82 до 92 відсотків, в залежності від типу палива.
- Тип котла – піролізний, що використовує для розігрівання теплоносія енергію гарячих газів (олефінові), що виділяються з вугілля або деревини.
- Час горіння на одній закладці палива – від 5 до 12 годин.
- Вартість – 55-60 тисяч рублів.
Котел тривалого горіння БУРАН — 20 +

З вбудованим в основну сорочку теплообмінником-змійовиком системи гарячого водопостачання.
Основні характеристики агрегату:
- Теплова потужність – 20 кВт, тому в «водогрійному» виконанні такий котел «потягне» систему опалення будинку площею до 150 квадратних метрів.
- ККД котла – від 78 до 82 відсотків, в залежності від типу палива.
- Час горіння на одній закладці палива – до 24 годин.
- Вартість – 75-80 тисяч рублів.
Камін ABX Oxford 7

З чавунною топкою і вбудованим теплообмінником. Подібні котли-каміни з водяним контуром можна використовувати для обігріву будинку і нагрівання води.
Характеристики котла-каміна:
- Теплова потужність каміна – 15 кВт.
- Теплова потужність водогрійного контуру – до 7 кВт.
- Об’єм води в контурі – 6 літрів.
- Вартість – 85-90 тисяч рублів.
dovidkam.com
Як вибрати твердопаливний котел тривалого горіння
[sc:baner ]>Щоб придбати відповідний опалювальний агрегат для приватного будинку, необхідно тверезо оцінити характеристики пропонованих варіантів і врахувати всі особливості житла, яке потрібно обігріти. Щоб справитися з цим завданням, вам доведеться зробити точні математичні розрахунки і гарненько продумати момент поставки пального. Відомості, які ви отримаєте з цієї статті, допоможуть вам зрозуміти, як вибрати твердопаливний котел тривалого горіння. Використовуйте запропонований матеріал, щоб уникнути поширених помилок і прийняти вірне рішення.
Объявления связанные с запросомРізновиди та принципи роботи твердопаливних котлів тривалого горіння
Якщо вам належить вибрати котел на твердому паливі тривалого горіння, насамперед ознайомтеся з класифікацією цих агрегатів. Маючи загальне уявлення про існуючі різновиди, ви зможете зорієнтуватися в широкому асортименті і відразу виключити невідповідні варіанти. Твердопаливні опалювальні котли відрізняються за кількома ознаками, які будуть описані далі в статті.
За способом спалювання палива
Котли тривалого горіння, на твердому паливі діляться на дві категорії:
- Традиційні. В котлах цього типу реалізована найпростіша схема спалювання палива. За принципом роботи вони нагадують звичайну піч зі спеціальним віконцем для подачі пального. Основний елемент традиційного котла – теплообмінник, що забезпечує передачу температури безпосередньо до теплоносія. Такі котли відрізняються небувалої надійністю і довговічністю, однак їх ККД залишає бажати кращого.

- Піролізні (газогенераторні). Цей тип котлів відрізняється підвищеним рівнем ККД. Такі агрегати виробляють теплову енергію, спалюючи паливо особливим шляхом. Спершу агрегат підсушує пальне. Далі слід дегазація, в ході якої близько 85% речовин при горінні перетворюється на горючий газ. Решта 15% залишаються у формі вугілля. У внутрішній порожнині камери згорання температура підвищується до 600°, за рахунок чого горючий газ окислюється і займається. Цей процес залишає гарячий шар вугілля. Маси низькотемпературних газів насичуються вуглецем, забезпечуючи підвищення температури до 1000°. В таких умовах вугілля розкладається, виділяючи велику кількість теплової енергії. Потік повітря, подводимый до верхньої стінки камери згоряння, направляє полум’я вертикально вниз. За рахунок цього процес горіння стає керованим. Безперервна подача повітря забезпечує постійне окислення горючих газів.
За матеріалом виготовлення
В асортименті побутових твердопаливних котлів зустрічаються агрегати, виготовлені з різних матеріалів. Виробники використовують два види металів:
- Чавун. Котел, виконаний з чавуну і являє собою секційну конструкцію, кожен відділ якої може бути відділений від інших. Можливість розбирання робить агрегат більш зручним при транспортуванні і монтажі. При виникненні необхідності проведення ремонтних робіт ця особливість істотно полегшує завдання майстру. У ході експлуатації чавунного котла внутрішні стінки камери згоряння піддаються хімічної корозії. На них з’являється суха іржа (плівка, що складається з оксиду заліза). Як правило, вона не прогресує, тому ККД агрегату залишається на стабільно високому рівні. Часто чистити його від нагару не доведеться. Єдиним істотним недоліком чавунного твердопаливного котла є сприйнятливість до перепадів температури. Тепловий удар може призвести до пошкодження стінок камери. Таких випадків варто уникати.

- Сталь. Котел виготовлений з цього металу, являє собою моноблочний агрегат, який збирається в заводських умовах. Розібрати його для зручності транспортування не вдасться. Сталеві твердопаливні котли тривалого горіння не бояться теплових ударів, тому в них більш широко використовують автоматичні електронні пристрої зміни режимів. Тим не менш, систематичні перепади температур призводять до утворення втомлених зон на стінках камери згоряння, що з часом призводить до прогорання металу. Якщо це станеться, відремонтувати агрегат не вдасться.
За типом використовуваного палива
Опалювальні твердопаливні котли тривалого горіння поділяють на чотири категорії за типом спалюваного палива:
- На дровах. Найпоширеніша різновид твердопаливного котла. Її популярність пояснюється простотою конструкції і невибагливістю до пальному. Твердопаливний котел тривалого горіння, на дровах може працювати практично при будь-яких умовах, але у нього є один суттєвий недолік – відсутність автоматики. По мірі згорання палива користувачеві доводиться підкладати в топку дрова.

- На вугіллі. Такий котел підійде для будинку великої площі куди більше, ніж дров’яної. Вугілля відрізняється низькою вартістю і зручністю транспортування.
- На пелетах. В якості палива для котлів цієї різновиди використовуються деревні паливні гранули, що представляють собою спресовані відходи деревообробної промисловості. Їх називають пелетами. Відносно невелика камера згорання пелетного котла спалює брикети, виробляючи велику кількість тепла.
- На тирсі. Окрема різновид твердопаливних котлів, в яких спалюються тирсу, суха трава, листя і інші відходи. Такі агрегати забезпечують якісний обігрів житла, а також вирішують проблему утилізації сміття рослинного походження.
Двоконтурні
Котли двоконтурні котли тривалого горіння відрізняються тим, що не тільки опалюють житло, але ще й підігрівають воду для використання в побутових цілях. Встановивши такий агрегат, ви обогреете будинок і заодно вирішити проблему забезпечення теплої води для ванної кімнати та кухні. Твердопаливний котел тривалого горіння з водяним контуром коштує дорожче, проте з ним відпадає потреба у встановленні газової колонки або бойлери.
Критерії вибору котлів на твердому паливі тривалого горіння
Із загальною класифікацією котлів на твердому пальному ми вже ознайомилися. Настав час розглянути критерії, за якими власники приватних будинків визначають оптимально відповідні варіанти агрегатів для монтажу систем обігріву. Ознайомившись з наступними розділами, ви дізнаєтеся, як правильно вибрати твердопаливний котел тривалого горіння для свого житла.
Вид пального
Першим ділом ви повинні визначитися з тим, яке паливо буде використовуватися для опалення. Виходите з того, який вид палива зручніше купувати і завозити. Якщо у вас є заготовлена деревина, буде розумно придбати котел на дровах. Власникам котеджів, де немає дерев, можна порекомендувати опалення пелетами. Вугільні котли підійдуть тим, хто має можливість на вигідних умовах замовляти якісне паливо. Системи опалення на тирсі, як правило, використовуються для обігріву об’єктів, що займаються обробкою деревини.
Потужність котла
Щоб визначити необхідну потужність опалювальної системи, треба зробити прості математичні обчислення. Розрахуйте загальний обсяг приміщень, які збираєтеся опалювати. Отримана цифра допоможе вам знайти в широкому асортименті твердопаливних котлів тривалого згоряння модель з відповідними параметрами. Майте на увазі: завжди потрібно забезпечувати запас потужності, щоб при сильному зимовому морозі в будинку не було холодно.
Вага пристрою
При виборі твердопаливного котла тривалого згоряння для обігріву приватного будинку параметр маси приймається до уваги, лише якщо власник має намір закріпити куплений агрегат на стіні. Згідно державним стандартам, встановленим газовою службою Росії, такий спосіб монтажу допускається для опалювальних котлів об’ємом менше 100 літрів.
Обсяг завантажувальної камери

Цей параметр характеризує співвідношення обсягу закладається палива потужністю опалювального агрегату. Чим більше пального вміщується в завантажувальній камері, тим рідше вам доведеться поповнювати запас дров/вугілля/пелет. Для сталевих котлів відношення цих величин становить 1,6-2,6 л/кВт. Чавунні опалювальні агрегати витрачають паливо в менших кількостях – 1,1-1,4 л/кВт.
Загальний обсяг завантажувальної камери допоможе вам приблизно оцінити можливості котла. Заповнити її на 100% вам не вдасться в будь-якому випадку. Куди більше значення має корисний об’єм завантажувальної камери. Ця величина відображає фактичне кількість палива, яке ви зможете завантажити в камеру згоряння. Щоб визначити її, треба знати принцип спалювання пального обраного котла і спосіб завантаження палива (верхній або передній).
Коефіцієнт корисної дії котла
Один з головних параметрів для будь-якого твердопаливного опалювального агрегату тривалого згоряння. Цифра, що виражає ККД котла, характеризує ту частину виробленої теплової енергії, яка реально витрачається на опалення житла. Вибираючи агрегат з високим коефіцієнтом корисної дії, ви зможете знизити вимоги до потужності. Низький ККД передбачає зайвий витрата тепла, тому вам доведеться додавати більше пального, щоб підтримувати прийнятну температуру в будинку.
Огляд кращих виробників твердопаливних котлів опалення
Сучасний ринок опалювальних систем для приватних будинків повниться пропозиціями від безлічі брендів, проте далеко не всі ці агрегати можуть похвалитися надійністю і довговічністю. Про те, як вибрати домашній твердопаливний котел тривалого горіння ви дізналися з попередніх розділів статті. Настав час звузити область пошуку до кола тих виробників, які по-справжньому заслуговують поваги:

Де купити і скільки коштують
Придбання твердопаливного котла тривалого згоряння для обігріву приватного будинку – завдання серйозне. Підходити до неї потрібно з максимальною відповідальністю. Такий агрегат коштує чималих грошей, тому насамперед необхідно оцінювати надійність сторони, що продає. У таблиці, наведеній нижче, ви знайдете контакти і деякі комерційні пропозиції перевірених московських постачальників опалювального обладнання.
Назва організації
Адреса, Веб-сайт
Найменування пропонованої моделі
Тип
Ціна, руб
«Технодім»
Заводське шосе, будинок №9А; Веб-сайт: teh-dom
Stropuva S8
Двуконтурний піролізний
60 000
Viardus Woodpell 7
Автоматичний пелетний
268 000
«Термо-Світ»
вул. Авіаконструктора Миля, будинок №19; Веб-сайт: termo-mir
Дон КС-Т-16
Дров’яної
198 00
Дон КС-ГВ-50Н
Дров’яної
24 000
«ГарантКомфорт»
Бізнес-Парк Румянцево, Київське шосе, будинок №1, корпус А, офіс №905; Веб-сайт: garantcomfort
Viardus U22D-5
Вугільно-дров’яної
85 034
Viardus U22D-10
Вугільно-дров’яної
125 235
«ТеплоДар»
Веб-сайт: teplodar
Теплодар Куппер ОК15
Твердопаливний універсальний
21 740
Теплодар Куппер ОК20
Твердопаливний універсальний
24 710
Теплодар Куппер ОК20
Твердопаливний універсальний
31 730
Відео: саморобний котел на твердому паливі своїми руками
Для тих, хто позбавлений можливості придбати дорогий опалювальний котел, підійде варіант складання такого агрегату в домашніх умовах. Наведений нижче відеоролик докладно пояснить, як це зробити. Прислухайтеся до порад фахівців, і зможете самостійно створити альтернативний варіант твердопаливного котла тривалого згоряння.
Відгуки покупців
Олег, 38 років: Три роки тому купив в інтернеті твердопаливний котел Wichlacz (Польща). Працює чудово. За весь час чистити камеру довелося тільки два рази. Взимку в будинку завжди тепло. Споживання вугілля мінімальне. Однієї закладки вистачає як мінімум на два дні. Автоматика функціонує безвідмовно. Раджу всім, хто живе в північних поясах.
Федір, 44 роки: У 2010 році викинув старий котел і купив новенький «Віадрус» на пелетах. Згоден, задоволення не з дешевих, але, зате проблема опалення зважилася раз, і назавжди. Автоматична подача пелет працює безвідмовно. Споживання палива мінімальне. Будинок опалюється цілу добу, але з фінансового боку це практично не відчувається. За час служби (майже 6 років) не виникло жодних претензій.
Євген, 34 роки: Як тільки купили будинок, я відразу поміняв котел. Встановив твердопаливний універсальний «Теплодар» Куппер ОК20. Для нашої житлоплощі потужності цього агрегату вистачає з головою. Сам котел коштує не дорого, та й паливо для нього не сильно б’є по кишені. При цьому ніхто з членів сім’ї не скаржиться на поганий обігрів. Топимо всім, що трапляється під руку. Дуже зручно: і сміття утилізуємо, і будинок опалюємо.
[sc:baner ]uawomen.ru
Твердопаливний котел тривалого горіння, для опалення будинку своїми руками
Твердопаливний котел тривалого горіння може бути встановлений на різних об’єктах. Ринок пропонує споживачам великий вибір пристроїв, але все більше покупців набуває опалювальні котли тривалого горіння. Секрет такої популярності проста, адже сьогодні ціни на електроенергію постійно збільшуються. Сучасні опалювальні комплекси обладнані надійною автоматикою. Виробники заявляють, що ККД приладів становить 90%. Установка твердопаливних котлів тривалого горіння своїми руками буде зроблено швидко.
Роблячи вибір, обов’язково звертайте увагу на потужність приладів. У продажу є різні типи установок, що працюють на дровах або вугіллі. Краще всього купувати продукцію відомих компаній — це надійні вироби.
Зміст статті
- 1 Принцип роботи приладів
- 2 Пристрої піролізного типу
- 3 Як зробити вибір
- 4 Процес монтажу
Принцип роботи приладів

- сланці;
- кам’яне вугілля;
- дрова;
- торф в брикетах.
Найефективнішим варіантом вважається використання кам’яного вугілля. У котлах тривалого горіння встановлені терморегулятори, з їх допомогою відбувається контроль процесу спалювання палива. Вона здійснюється в автоматичному режимі. Звичайно, котел тривалого горіння, на дровах має не тільки переваги, але і недоліки. До них можна віднести утворення відходів: сажі та пилу. Це неспалимі залишки, їх можна видалити.
Необхідно сказати і про переваги. Твердопаливні котли на дровах являють собою енергонезалежні пристрої. Обслуговувати такі установки дуже легко. Вам потрібно лише задати певний режим, і автоматика зробить всю іншу роботу. Великою популярністю серед споживачів користуються двоконтурні твердопаливні котли тривалого горіння, це дуже надійні комплекси з великим ресурсом.
Пристрої піролізного типу
У продажу є пристрої, які працюють на сухих дровах. Це дров’яні котли тривалого горіння, що отримали назву піролізні. Коли сухі дрова сильно нагріваються, починається процес термічного розкладання. У процесі розкладання паливо виділяє деревний газ, який спалюють в топці піролізної установки.
Дров’яні котли тривалого горіння влаштовані таким чином, що деревний газ на своєму шляху проходить через форсунки. Тут відбувається змішування газу з киснем, починається процес його спалювання. Температура в установці висока, піднімається до 1200°С. Теплова енергія від розпеченого газу передається воді, а сам газ виходить через отвір димоходу.
Якщо ви задумалися над придбанням котла на твердому паливі тривалого горіння, купіть запаси сухого палива. Необхідно звернути увагу на те, що газогенерація не буде відбуватися при використанні вологих дров. Рівень вологості матеріалу не повинен перевищувати 16%.
Фахівці кажуть, що такий комплекс вважається найефективнішим. Ви можете опалювати об’єкт пелетами, тирсою і тріскою, корою і дровами.
Як зробити вибір
Якщо ви вирішили придбати твердопаливний котел, зверніть увагу на розміри приміщення. Обов’язково врахуйте ступінь теплоізоляції установки. Важливе значення має температурний режим. Якщо ви любите жарко натопленные кімнати, купуйте установку більшої потужності. Крім того, важливим параметром є вид палива.
Провівши аналіз всіх цих пунктів, приймайте рішення про покупку. Зверніть увагу на пристрій твердопаливного котла. Розраховуючи потужність, користуйтесь наступним правилом. Для приміщення площею 20 м2 достатньо придбати пристрій потужністю 2 кВт. У цьому випадку мова йде про середньої потужності. Якщо ви бажаєте дізнатися точні цифри, зверніться до фахівців. Вибрати твердопаливний котел тривалого горіння допоможе досвідчений тепломеханик.
Багато власників приватних будинків бажають використовувати дров’яної котел тривалого горіння не тільки для обігріву приміщень, але і для нагрівання води. В цьому випадку потрібно купувати більш потужний комплекс. Пам’ятайте і про вплив виду палива на інтенсивність нагріву. Твердопаливний котел тривалого горіння при використанні палива різних видів покаже різну потужність.






Роблячи вибір, звертайте увагу на об’єм камери. Сьогодні в магазинах представлений широкий асортимент котлів тривалого горіння, на твердому паливі. Камери самого великого обсягу у тих, паливо в які завантажують зверху. Саме такий спосіб завантаження дає можливість максимально наповнити камеру. Тепер ви знаєте все про те, як вибрати твердопаливний котел.
Чавунні твердопаливні котли тривалого горіння зручно обслуговувати і перевозити. Крім того, чистити їх потрібно набагато рідше.
Однак необхідно захищати виробу від термічних ударів, адже при попаданні холодної води вони можуть лопнути. Пам’ятайте, що предмети з чавуну крихкі.
У продажу є вироби зі сталі, але вони найбільше схильні до появи іржі. Умільці можуть зробити котел тривалого горіння своїми руками.
Процес монтажу
Власники приватних будинків встановлюють циркуляційні насоси. Це дозволяє воді циркулювати природним чином. Якщо ви живете в населеному пункті, в якому часто відключають енергію, такі пристрої підійдуть ідеально.
Ви можете вибрати і енергозалежну автоматику. Принцип її роботи заснований на використанні вентилятора, що нагнітає повітря до місця, де здійснюється процес спалювання. Такі комплекси обладнані спеціальною системою управління, що вона працює на електриці.
Купіть двоконтурний котел, встановіть його в своєму будинку. Вибір пристрою залежить від суми, яку ви можете витратити на його придбання. Багато споживачі купують для приватних будинків сучасні котли тривалого горіння з водяним контуром.
dovidkam.com
.jpg)








